Дом из бруса 10 на 9 № ЭД-81 строительство домов из бруса и бревна под ключ цены
Обратная связь

Проект дома из бруса 10х9 № ЭД-81

Цена

Брус простой 150х150 2370170 Купить
Брус профилированный 145х145 2641540 Купить
Брус профилированный 145х195 3116960 Купить
Проект дома № ЭД-81 Проект дома № ЭД-81 Проект дома № ЭД-81 Проект дома № ЭД-81 Проект дома № ЭД-81 Проект дома № ЭД-81

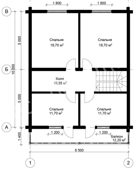
План схема Проект дома № ЭД-81

Высота стен первого этажа 3 метра.

Высота стен второго этажа 1,5 метра.

Высота рубленных фронтонов 3 метра.

Проект дома № ЭД-81 Проект дома № ЭД-81

Наша компания предлагает заказать услуги по строительству загородной недвижимости. На этой странице представлен проект брусового дома 10x9, который отлично подойдет как для сезонного отдыха, так и для постоянной жизни семьи.

Проект дома из бруса 10 на 9

Вот особенности данного проекта:

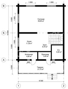
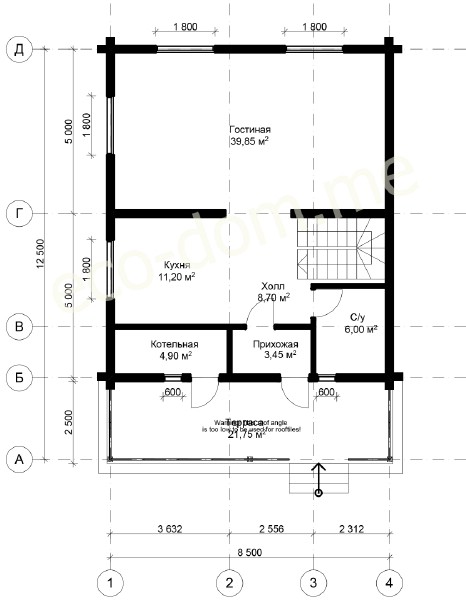
  • Просторная терраса (более 20 м кв).
  • Гостиная почти в 40 м кв, отлично подходящая для отдыха и приема гостей.
  • На втором этаже 4 спальни (1–2 из них можно использовать в качестве гостевых комнат).
  • Есть балкон площадью более 12 м кв.

С архитектурной точки зрения эта резиденция является образцом гармонии и симметрии. Заказав данный проект, вы получите дом, который идеально впишется в любой ландшафт.

Проект 2-этажного дома под усадку или под ключ

Наша компания возводит дома и под усадку, и под ключ. Первый вариант предусматривает:

  • Закладку фундамента.
  • Строительство стен.
  • Перекрывание крыши.

В данном случае вам придется ждать 1–2 года до того, пока древесина не высохнет. До этого выполнять внутреннюю отделку нельзя. Преимущества такого варианта – более доступная стоимость.

Если же вы закажите возведение резиденции под ключ, мы выполним все работы самостоятельно и сдадим объект полностью готовым для заселения.

Общие преимущества домов из бруса

Брус является одним из наиболее распространенных материалов, использующихся в деревянном домостроении. Он обладает такими достоинствами:

  • Отлично защищает от холода и дает прохладу в жару.
  • Не пропускает ветер и влагу.
  • Такой дом может обойтись без дорогостоящей внутренней отделки.

Еще одно важное преимущества бруса заключается в том, что его цена совсем невысокая. А с учетом того, что мы используем собственные лесозаготовки, вы можете рассчитывать на дополнительную экономию.

Порядок сотрудничества

Наши специалисты сделают все возможное, чтобы вы остались довольны своим новым домом. Мы предлагаем такой порядок взаимодействия:

  • Вы связываетесь с менеджером компании «Эко Дом Мне» и называете номер проекта, который вас заинтересовал.
  • Мы предлагаем несколько вариантов реализации проекта (из обычного бруса или из профилированного).
  • Выбираете подходящий, заключаем договор и приступаем к работе.

Чтобы связаться с нашим представителем, заполните заявку в режиме онлайн или позвоните по телефону, который размещен на сайте.

В комплектацию дома под усадку входит:

Материалы:

  • Наружные стены,бруса 150*150 мм.,145*145 мм.,195*145 мм.,(уточнять);
  • Внутренние стены,брус 100*150 мм.,95*145 мм.,145*145 мм.,(уточнять);
  • Рубленные фронтоны(в зависимости от комплектации,возможно каркасного типа (уточнять);
  • Внутренние перегородки,в зависимости от комплектации,возможно каркасного типа либо из бруса(уточнять);
  • Лаги пола первого этажа брус 100*150 мм.,межэтажные,подстропильные,возможен второй свет в зависимости от комплектации(уточнять);
  • Стропильная конструкция,брус 50*150 мм.;
  • Контробрешётка брус 50*50 мм.;
  • Обрешётка крыши,доска 25*150 мм., 25*100 мм.;
  • Метизные изделия (скобы, гвозди...);
  • Межвенцевой утеплитель,джут (льноватин);
  • Рубероид, временная кровля(уточнять);
  • Материал на изготовление строительных лесов;
  • Гидроизоляция на фундамент, гидроизол;
  • Рабочий проект;
  • Погрузка и разгрузка пиломатериалов на участка Заказчика;

Перечень работ:

  • Монтаж сруба с внутренними стенами(в зависимости от комплектации);
  • Врезка балок пола, межэтажных, подстропильных(в зависимости от комплектации);
  • Прокладка межвенцового утеплителя джута (льноватина);
  • Прошкантовка стен деревянными нагелями;
  • Монтаж стропильной конструкции;
  • Укладка обрешётки;
  • Покрытие крыши временной кровлей рубероид(уточнять);
  • Укладка на фундамент гидроизоляции;
  • Монтаж и демонтаж строительных лесов;
  • Обработка нижних венцов и балок.

Фундамент,кровля и доставка расчитываются индивидуально.

Площадь общая: 181,20м2
Площадь полезная 184,88м2

Похожие проекты

Наши преимущества
Работаем без предоплаты!
Выезд на заключение договора - бесплатно!
Доставка в любую точку центрального региона!
Материал проходит обработку экологически чистым антисептиком для внутренних и наружных работ!
При заказе дома скидка на баню до 10% от стоимости!
Бесплатный выезд для проведения послеусадочных работ!
Отделочные работы нами построенных домов - скидки до 20%!
Строим дома любой сложности!
Бесплатный расчет Вашего проекта!
Делаем согласование проектов домов с БТИ (данная услуга осуществляется отдельно)!
Предлагаем услуги дизайнера по созданию визуального вида вашего будущего дома!
Видео отзывы
Есть вопросы по строительству дома?
Вы можете приложить файл с проектом, схемой объекта. Если файлов несколько, вы можете сжать их архиватором WinZip или WinRar.