Дом из бруса 9 на 9 № ЭД-62 строительство домов из бруса и бревна под ключ цены
Обратная связь

Проект дома из бруса 9х9 № ЭД-62

Цена

Брус простой 150х150 2337720 Купить
Брус профилированный 145х145 2613710 Купить
Брус профилированный 145х195 3098370 Купить
Проект дома № ЭД-62 Проект дома № ЭД-62 Проект дома № ЭД-62 Проект дома № ЭД-62 Проект дома № ЭД-62 Проект дома № ЭД-62

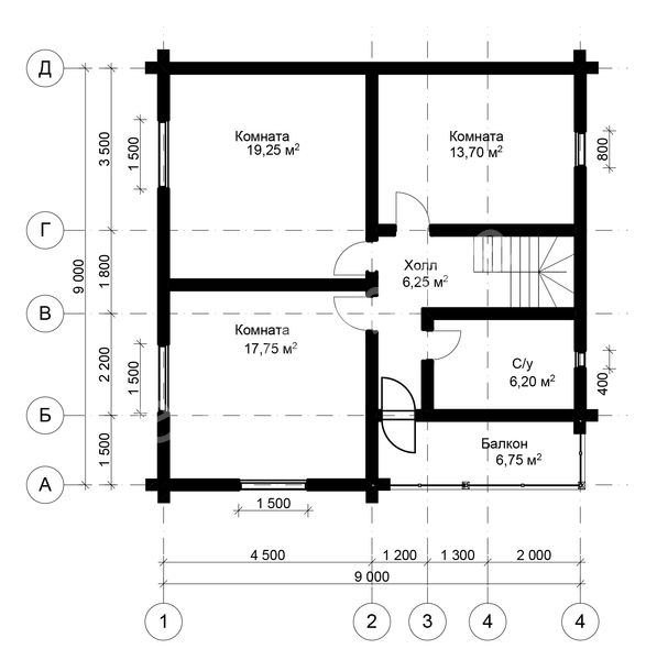
План схема Проект дома № ЭД-62

Высота стен первого этажа 3 метра.

Высота стен второго этажа 2,5 метра.

Проект дома № ЭД-62 Проект дома № ЭД-62

Компания «Эко Дом Мне» ведет активное строительство домов из натурального бруса. Одним из популярных готовых вариантов является проект дома размером 9х9 № ЭД-62 с двумя этажами. Квадратная конструкция интересна и привлекательна тем, что планировка обоих этажей полностью идентична. Как наверху, так и внизу располагаются санузел, балкон, просторный холл и по три комнаты. Использовать их можно в качестве спален, гостиных, детских и столовой.

Преимуществами проекта является:

  • разумная стоимость;
  • возможность изменения параметров ширины, высоты и длины;
  • отличная планировка, удобная для каждого из членов семьи.

В качестве основного материала применяется простой или профилированный брус, который заготавливается работниками фирмы самостоятельно. Необходимые объемы постоянно имеются на складе.

Проект дома из бруса 9 на 9

Деревянный дом размером 9 на 9 отражает собой все современные тенденции строительства. Использование натурального бруса обеспечивает приятную эстетику интерьеров и экстерьеров. Оригинальная текстура дерева отлично смотрится. При этом необходимость в дополнительной декоративной отделке полностью отпадает. Это дает возможность сэкономить на расходах.

Деревянные конструкции отличаются:

  • экологичностью;
  • долговечностью;
  • отсутствием вредных токсичных веществ и аллергенов;
  • хорошей теплопроводностью;
  • благоприятным микроклиматом;
  • низкой ценой.

После завершения строительного процесса сотрудники компании «Эко Дом Мне» выполняют полную антисептическую обработку конструкции. С ее помощью можно увеличить срок службы дома и защитить его от появления плесневых и грибковых пятен. Специальный состав для обработки является абсолютно безопасным для жизни взрослых и детей. Через год можно повторить процедуру.

Заказ строительства двухэтажного дома по проекту № ЭД-62

Если вы давно мечтаете о новом доме и хотите видеть его ровно таким, как предлагает готовый проект № ЭД-62, обратитесь в компанию «Эко Дом Мне». Строительство возможно в любом городе Центральной России. Вызов представителя для проведения замеров, обсуждения интересующих вопросов и оформления договора с клиентом выполняются бесплатно.

Позвоните нам по телефону или воспользуйтесь вариантом обратной связи, оставив заявку на звонок прямо на сайте.

В комплектацию дома под усадку входит:

Материалы:

  • Наружные стены,бруса 150*150 мм.,145*145 мм.,195*145 мм.,(уточнять);
  • Внутренние стены,брус 100*150 мм.,95*145 мм.,145*145 мм.,(уточнять);
  • Рубленные фронтоны(в зависимости от комплектации,возможно каркасного типа (уточнять);
  • Внутренние перегородки,в зависимости от комплектации,возможно каркасного типа либо из бруса(уточнять);
  • Лаги пола первого этажа брус 100*150 мм.,межэтажные,подстропильные,возможен второй свет в зависимости от комплектации(уточнять);
  • Стропильная конструкция,брус 50*150 мм.;
  • Контробрешётка брус 50*50 мм.;
  • Обрешётка крыши,доска 25*150 мм., 25*100 мм.;
  • Метизные изделия (скобы, гвозди...);
  • Межвенцевой утеплитель,джут (льноватин);
  • Рубероид, временная кровля(уточнять);
  • Материал на изготовление строительных лесов;
  • Гидроизоляция на фундамент, гидроизол;
  • Рабочий проект;
  • Погрузка и разгрузка пиломатериалов на участка Заказчика;

Перечень работ:

  • Монтаж сруба с внутренними стенами(в зависимости от комплектации);
  • Врезка балок пола, межэтажных, подстропильных(в зависимости от комплектации);
  • Прокладка межвенцового утеплителя джута (льноватина);
  • Прошкантовка стен деревянными нагелями;
  • Монтаж стропильной конструкции;
  • Укладка обрешётки;
  • Покрытие крыши временной кровлей рубероид(уточнять);
  • Укладка на фундамент гидроизоляции;
  • Монтаж и демонтаж строительных лесов;
  • Обработка нижних венцов и балок.

Фундамент,кровля и доставка расчитываются индивидуально.

Площадь общая: 140,30м2
Площадь полезная 143,90м2

Похожие проекты

Наши преимущества
Работаем без предоплаты!
Выезд на заключение договора - бесплатно!
Доставка в любую точку центрального региона!
Материал проходит обработку экологически чистым антисептиком для внутренних и наружных работ!
При заказе дома скидка на баню до 10% от стоимости!
Бесплатный выезд для проведения послеусадочных работ!
Отделочные работы нами построенных домов - скидки до 20%!
Строим дома любой сложности!
Бесплатный расчет Вашего проекта!
Делаем согласование проектов домов с БТИ (данная услуга осуществляется отдельно)!
Предлагаем услуги дизайнера по созданию визуального вида вашего будущего дома!
Видео отзывы
Есть вопросы по строительству дома?
Вы можете приложить файл с проектом, схемой объекта. Если файлов несколько, вы можете сжать их архиватором WinZip или WinRar.