Дом из бруса 9 на 10 № ЭД-45 строительство домов из бруса и бревна под ключ цены
Обратная связь

Проект дома из бруса 9х10 № ЭД-45

Цена

Брус простой 150х150 2328370 Купить
Брус профилированный 145х145 2748130 Купить
Брус профилированный 145х195 3188790 Купить
Проект дома из бруса 9х10 № ЭД-45 Проект дома из бруса 9х10 № ЭД-45 Проект дома из бруса 9х10 № ЭД-45 Проект дома из бруса 9х10 № ЭД-45 Проект дома из бруса 9х10 № ЭД-45 Проект дома из бруса 9х10 № ЭД-45

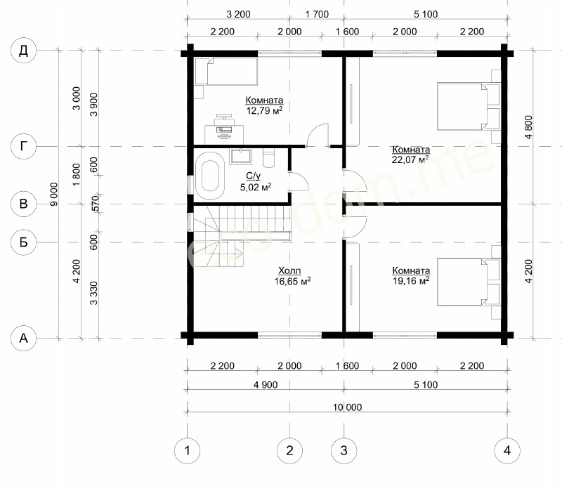
План схема Проект дома из бруса 9х10 № ЭД-45

Высота 1-го этажа 3 метра.

Высота стен 2-го этажа 1 метр.

Высота рубленных фронтонов 3 метра.

Проект дома из бруса 9х10 № ЭД-45 Проект дома из бруса 9х10 № ЭД-45

Строительная бригада «Эко Дом Мне» выполнит постройку великолепного двухэтажного дома из бруса 9х10 по проекту № ЭД-45. Это отличный вариант для тех, кто особенно ценит комфорт и удобство. В качестве основного материала используется простой или профилированный брус. Стоимость напрямую зависит от типа материала и возможных корректировок в отношении длины, ширины или высоты постройки.

Основными характеристиками предлагаемого объекта недвижимости являются:

  • высота 1-го этажа — 3,0 метра;
  • высота стен 2-го этажа — 1,0 метр;
  • доступная цена (от 794000 до 1145000 рублей);
  • широкая гостиная-столовая (площадь более 27 кв.м).

На первом этаже располагаются: веранда, гостиная-столовая, кухня, кабинет и крыльцо. На втором этаже вас ждут: комната отдыха, две спальни, санузел. Зона верхнего этажа предназначена для отдыха, а первого — для встречи гостей, развлечений и приятного времяпрепровождения. В таком уютном и просторном доме можно часто проводить семейные вечера или встречи с близкими друзьями.

Проект двухэтажного дома из бруса 9 на 10

Чтобы заказать возведение дома из бруса 9 на 10, стоит обратиться к квалифицированным сотрудникам компании «Эко Дом Мне». Они предоставят всю подробную информацию о проекте и учтут ваши индивидуальные пожелания в отношении некоторых изменений по параметрам постройки.

Основными преимуществами нашей фирмы являются:

  • проведение строительства во всех регионах;
  • отличные цены;
  • отсутствие предоплаты;
  • оперативная доставка материалов и спецтехники на объект;
  • бригады опытных и высококвалифицированных сотрудников;
  • использование безопасных и экологичных материалов.

Деревянный брус идеально подходит для возведения жилых домов. Такой материал «дышит», образует благоприятный микроклимат, способствует хорошему самочувствию и не требует дополнительной декоративной отделки. Коттеджи из бруса выглядят стильно, современно и оригинально. Они вызывают восхищение не только у своих обладателей, но и у окружающих.

Проект двухэтажного дома № ЭД-45

Чтобы заказать строительство двухэтажного дома по проекту № ЭД-45, обращайтесь к сотрудникам «Эко Дом Мне». Для этого позвоните по телефону, номер которого видите перед собой на сайте, или же воспользуйтесь вариантом удобного и бесплатного обратного звонка.

В комплектацию дома под усадку входит:

Материалы:

  • Наружные стены,бруса 150*150 мм.,145*145 мм.,195*145 мм.,(уточнять);
  • Внутренние стены,брус 100*150 мм.,95*145 мм.,145*145 мм.,(уточнять);
  • Рубленные фронтоны(в зависимости от комплектации,возможно каркасного типа (уточнять);
  • Внутренние перегородки,в зависимости от комплектации,возможно каркасного типа либо из бруса(уточнять);
  • Лаги пола первого этажа брус 100*150 мм.,межэтажные,подстропильные,возможен второй свет в зависимости от комплектации(уточнять);
  • Стропильная конструкция,брус 50*150 мм.;
  • Контробрешётка брус 50*50 мм.;
  • Обрешётка крыши,доска 25*150 мм., 25*100 мм.;
  • Метизные изделия (скобы, гвозди...);
  • Межвенцевой утеплитель,джут (льноватин);
  • Рубероид, временная кровля(уточнять);
  • Материал на изготовление строительных лесов;
  • Гидроизоляция на фундамент, гидроизол;
  • Рабочий проект;
  • Погрузка и разгрузка пиломатериалов на участка Заказчика;

Перечень работ:

  • Монтаж сруба с внутренними стенами(в зависимости от комплектации);
  • Врезка балок пола, межэтажных, подстропильных(в зависимости от комплектации);
  • Прокладка межвенцового утеплителя джута (льноватина);
  • Прошкантовка стен деревянными нагелями;
  • Монтаж стропильной конструкции;
  • Укладка обрешётки;
  • Покрытие крыши временной кровлей рубероид(уточнять);
  • Укладка на фундамент гидроизоляции;
  • Монтаж и демонтаж строительных лесов;
  • Обработка нижних венцов и балок.

Фундамент,кровля и доставка расчитываются индивидуально.

Площадь общая: 157,52м2
Площадь полезная 163,44м2

Похожие проекты

Наши преимущества
Работаем без предоплаты!
Выезд на заключение договора - бесплатно!
Доставка в любую точку центрального региона!
Материал проходит обработку экологически чистым антисептиком для внутренних и наружных работ!
При заказе дома скидка на баню до 10% от стоимости!
Бесплатный выезд для проведения послеусадочных работ!
Отделочные работы нами построенных домов - скидки до 20%!
Строим дома любой сложности!
Бесплатный расчет Вашего проекта!
Делаем согласование проектов домов с БТИ (данная услуга осуществляется отдельно)!
Предлагаем услуги дизайнера по созданию визуального вида вашего будущего дома!
Видео отзывы
Есть вопросы по строительству дома?
Вы можете приложить файл с проектом, схемой объекта. Если файлов несколько, вы можете сжать их архиватором WinZip или WinRar.