Дом из бруса 11 на 12 № ЭД-68 строительство домов из бруса и бревна под ключ цены
Обратная связь

Проект дома из бруса 11х12 № ЭД-68

Цена

Брус простой 150х150 2520870 Купить
Брус профилированный 145х145 2778270 Купить
Брус профилированный 145х195 3149410 Купить
Проект дома из бруса 11х12 № ЭД-68 Проект дома из бруса 11х12 № ЭД-68 Проект дома из бруса 11х12 № ЭД-68 Проект дома из бруса 11х12 № ЭД-68 Проект дома из бруса 11х12 № ЭД-68 Проект дома из бруса 11х12 № ЭД-68

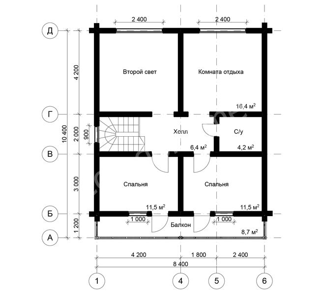
План схема Проект дома из бруса 11х12 № ЭД-68

Высота стен первого этажа 3 метра.

Высота стен второго этажа 1,6 метра.

Высота рубленных фронтонов 2.5 метра.

Проект дома из бруса 11х12 № ЭД-68 Проект дома из бруса 11х12 № ЭД-68

Компания «Эко Дом Мне» принимает заказы на строительство стильных и комфортабельных домов по проекту № ЭД-68 с параметрами 11х12 метров. Двухэтажная конструкция характеризуется доступной ценой и отличной удобной планировкой.

На 1-м этаже будут размещены:

  • гостиная;
  • спальня;
  • кухня-столовая;
  • терраса;
  • холл;
  • тамбур;
  • санузел.

На 2-м этаже — две спальни, комната отдыха, санузел, холл и балкон. Использовать эти комнаты можно для детских и взрослых спален. Гостей, которые решили вас посетить и остаться на несколько дней, можно будет разместить в спальне на первом этаже. Нет никаких лишних помещений, и при этом присутствуют все необходимые для жизни зоны.

Отличный проект дома из бруса 11 на 12: достоинства конструкции

Компания «Эко Дом Мне» предлагает широкий выбор готовых проектов по низкой стоимости. Проект № ЭД-68 пользуется высоким спросом среди клиентов. Это объясняется его главными достоинствами, среди которых стоит выделить:

  • отличную цену;
  • стильный дизайн;
  • удобную планировку;
  • наличие большой террасы с защитой от дождя;
  • наличие большого балкона;
  • сенсорное освещение.

Строительство ведется преимущественно из простого или профилированного бруса. Он не выделяет токсинов или аллергенов, создает комфортный микроклимат в доме в течение всего года, избавляет от необходимости проведения отделочных работ. Натуральное дерево всегда пользуется спросом. Оно отлично выглядит даже с течением времени и не выходит из моды. Брус — это лучший материал для тех, кто страдает заболеваниями легких. Эфирные смолы дерева уничтожают бактерии, что благоприятно сказывается на состоянии здоровья жильцов. Одновременно с этим увеличивается работоспособность, исчезает апатия.

Как сделать заказ на строительство двухэтажного дома по проекту № ЭД-68

Заказать строительство деревянного дома по проекту № ЭД-68 можно в  компании «Эко Дом Мне». Для этого просто позвоните сотрудникам фирмы по контактному телефону или воспользуйтесь вариантом обратной связи.

Профессиональные строительные бригады ведут работы во всех регионах Центральной России. Выезд представителя компании в ваш город для проведения замеров и заключения договора осуществляется бесплатно. Предоставляем скидки на возведение фундамента и дополнительную отделку построенного объекта.

В комплектацию дома под усадку входит:

Материалы:

  • Наружные стены,бруса 150*150 мм.,145*145 мм.,195*145 мм.,(уточнять);
  • Внутренние стены,брус 100*150 мм.,95*145 мм.,145*145 мм.,(уточнять);
  • Рубленные фронтоны(в зависимости от комплектации,возможно каркасного типа (уточнять);
  • Внутренние перегородки,в зависимости от комплектации,возможно каркасного типа либо из бруса(уточнять);
  • Лаги пола первого этажа брус 100*150 мм.,межэтажные,подстропильные,возможен второй свет в зависимости от комплектации(уточнять);
  • Стропильная конструкция,брус 50*150 мм.;
  • Контробрешётка брус 50*50 мм.;
  • Обрешётка крыши,доска 25*150 мм., 25*100 мм.;
  • Метизные изделия (скобы, гвозди...);
  • Межвенцевой утеплитель,джут (льноватин);
  • Рубероид, временная кровля(уточнять);
  • Материал на изготовление строительных лесов;
  • Гидроизоляция на фундамент, гидроизол;
  • Рабочий проект;
  • Погрузка и разгрузка пиломатериалов на участка Заказчика;

Перечень работ:

  • Монтаж сруба с внутренними стенами(в зависимости от комплектации);
  • Врезка балок пола, межэтажных, подстропильных(в зависимости от комплектации);
  • Прокладка межвенцового утеплителя джута (льноватина);
  • Прошкантовка стен деревянными нагелями;
  • Монтаж стропильной конструкции;
  • Укладка обрешётки;
  • Покрытие крыши временной кровлей рубероид(уточнять);
  • Укладка на фундамент гидроизоляции;
  • Монтаж и демонтаж строительных лесов;
  • Обработка нижних венцов и балок.

Фундамент,кровля и доставка расчитываются индивидуально.

Площадь общая: 173,55м2
Площадь полезная 164,75м2

Похожие проекты

Наши преимущества
Работаем без предоплаты!
Выезд на заключение договора - бесплатно!
Доставка в любую точку центрального региона!
Материал проходит обработку экологически чистым антисептиком для внутренних и наружных работ!
При заказе дома скидка на баню до 10% от стоимости!
Бесплатный выезд для проведения послеусадочных работ!
Отделочные работы нами построенных домов - скидки до 20%!
Строим дома любой сложности!
Бесплатный расчет Вашего проекта!
Делаем согласование проектов домов с БТИ (данная услуга осуществляется отдельно)!
Предлагаем услуги дизайнера по созданию визуального вида вашего будущего дома!
Видео отзывы
Есть вопросы по строительству дома?
Вы можете приложить файл с проектом, схемой объекта. Если файлов несколько, вы можете сжать их архиватором WinZip или WinRar.