Дом из бруса 13 на 12 № ЭД-72 строительство домов из бруса и бревна под ключ цены
Обратная связь

Проект дома из бруса 13х12 № ЭД-72

Цена

Брус простой 150х150 2481490 Купить
Брус профилированный 145х145 2864180 Купить
Брус профилированный 145х195 3353460 Купить
Проект дома № ЭД-72 Проект дома № ЭД-72 Проект дома № ЭД-72 Проект дома № ЭД-72 Проект дома № ЭД-72 Проект дома № ЭД-72

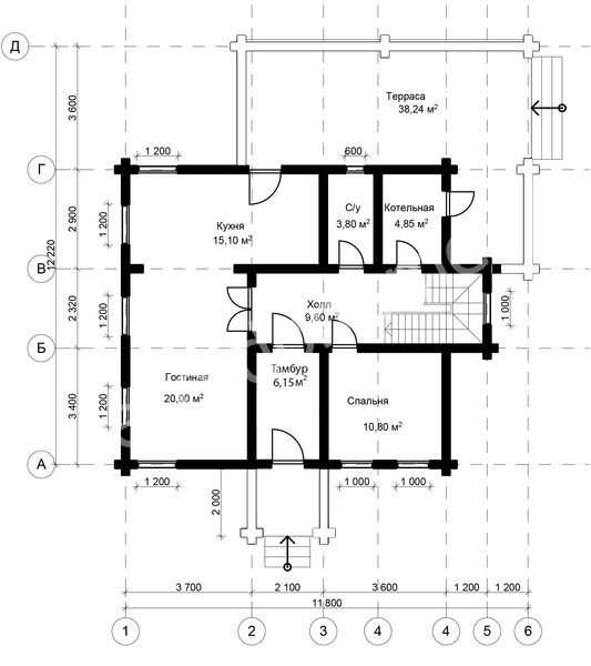
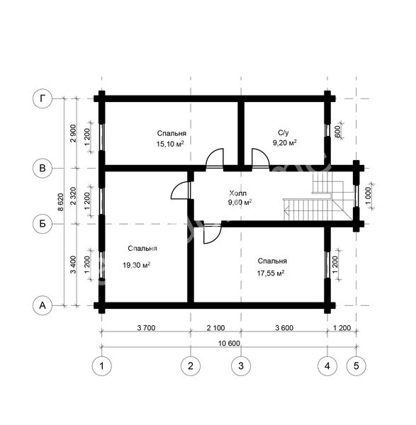
План схема Проект дома № ЭД-72

Высота стен первого этажа 3 метра.

Высота стен второго этажа 1,5 метра.

Высота рубленных фронтонов 3 метра.

Проект дома № ЭД-72 Проект дома № ЭД-72

Популярная строительная компания «Эко Дом Мне» на профессиональном уровне занимается возведением домов из высококачественных лесоматериалов. За годы функционирования мы успешно осуществили огромное количество различных проектов. Все клиенты фирмы остались довольны предоставленными услугами, ведь у нас работают высококлассные специалисты, которые обладают рядом весомых достоинств:

  • Превосходной репутацией.
  • Добросовестностью.
  • Высоким уровнем профессионализма.
  • Богатым опытом в сфере строительства.

Проект дома из бруса 13 на 12 

Проект двухэтажного дома, который мы предлагаем, — превосходное решение для большой семьи. В доме есть четыре спальни, два санузла, гостиная, кухня, тамбур, котельная, холл, большая терраса. Стоит отметить, что все комнаты довольно просторные, а планировка дома тщательно продумана. Предложенное нами жилье имеет стильный внешний вид, демократичную цену, большую площадь. Компания использует во время постройки исключительно качественные лесоматериалы, поэтому здание простоит долгие десятилетия.

Проект двухэтажного дома 

Двухэтажные дома пользуются большой популярностью. Это обусловлено множеством преимуществ таких построек. В первую очередь это касается престижности. Двухэтажное здание выглядит дорого, презентабельно, красиво. Помимо этого, такая постройка сэкономит место на участке. Также большим плюсом является возможность размещения в доме большого количества людей. Если в семье есть несколько детей — у каждого будет своя комната, следовательно, и личное пространство. Еще стоит отметить, что большая площадь дает возможность осуществить самые смелые дизайнерские решения.

Преимущества нашей фирмы 

Обращаясь к нам, клиент получает следующие преимущества:

  • Команду высококвалифицированных специалистов.
  • Привлекательную стоимость услуг.
  • Быстрое и качественное возведение экологически чистого жилья.
  • Гарантию на выполненную работу.
  • Скидку на возведение бани, а также на отделочные работы.
  • Консультацию у специалиста.
  • Бесплатный выезд сотрудника фирмы для осмотра местности и заключения договора.

Если решили воспользоваться услугами именно нашей компании, выполните одно из действий:

  • Отправьте письмо по электронной почте.
  • Закажите обратный звонок.
  • Позвоните по указанному на сайте номеру.

В комплектацию дома под усадку входит:

Материалы:

  • Наружные стены,бруса 150*150 мм.,145*145 мм.,195*145 мм.,(уточнять);
  • Внутренние стены,брус 100*150 мм.,95*145 мм.,145*145 мм.,(уточнять);
  • Рубленные фронтоны(в зависимости от комплектации,возможно каркасного типа (уточнять);
  • Внутренние перегородки,в зависимости от комплектации,возможно каркасного типа либо из бруса(уточнять);
  • Лаги пола первого этажа брус 100*150 мм.,межэтажные,подстропильные,возможен второй свет в зависимости от комплектации(уточнять);
  • Стропильная конструкция,брус 50*150 мм.;
  • Контробрешётка брус 50*50 мм.;
  • Обрешётка крыши,доска 25*150 мм., 25*100 мм.;
  • Метизные изделия (скобы, гвозди...);
  • Межвенцевой утеплитель,джут (льноватин);
  • Рубероид, временная кровля(уточнять);
  • Материал на изготовление строительных лесов;
  • Гидроизоляция на фундамент, гидроизол;
  • Рабочий проект;
  • Погрузка и разгрузка пиломатериалов на участка Заказчика;

Перечень работ:

  • Монтаж сруба с внутренними стенами(в зависимости от комплектации);
  • Врезка балок пола, межэтажных, подстропильных(в зависимости от комплектации);
  • Прокладка межвенцового утеплителя джута (льноватина);
  • Прошкантовка стен деревянными нагелями;
  • Монтаж стропильной конструкции;
  • Укладка обрешётки;
  • Покрытие крыши временной кровлей рубероид(уточнять);
  • Укладка на фундамент гидроизоляции;
  • Монтаж и демонтаж строительных лесов;
  • Обработка нижних венцов и балок.

Фундамент,кровля и доставка расчитываются индивидуально.

Площадь общая: 183,29м2
Площадь полезная 182,30м2

Похожие проекты

Наши преимущества
Работаем без предоплаты!
Выезд на заключение договора - бесплатно!
Доставка в любую точку центрального региона!
Материал проходит обработку экологически чистым антисептиком для внутренних и наружных работ!
При заказе дома скидка на баню до 10% от стоимости!
Бесплатный выезд для проведения послеусадочных работ!
Отделочные работы нами построенных домов - скидки до 20%!
Строим дома любой сложности!
Бесплатный расчет Вашего проекта!
Делаем согласование проектов домов с БТИ (данная услуга осуществляется отдельно)!
Предлагаем услуги дизайнера по созданию визуального вида вашего будущего дома!
Видео отзывы
Есть вопросы по строительству дома?
Вы можете приложить файл с проектом, схемой объекта. Если файлов несколько, вы можете сжать их архиватором WinZip или WinRar.