Элитные дома из бруса 10 на 9 № ЭД-79 строительство домов из бруса и бревна под ключ цены
Обратная связь

Проект элитного дома из бруса 10х9 № ЭД-79

Цена

Брус простой 150х150 2474560 Купить
Брус профилированный 145х145 2806100 Купить
Брус профилированный 145х195 3177240 Купить
Проект элитного дома из бруса 10х9 № ЭД-79 Проект элитного дома из бруса 10х9 № ЭД-79 Проект элитного дома из бруса 10х9 № ЭД-79 Проект элитного дома из бруса 10х9 № ЭД-79 Проект элитного дома из бруса 10х9 № ЭД-79 Проект элитного дома из бруса 10х9 № ЭД-79

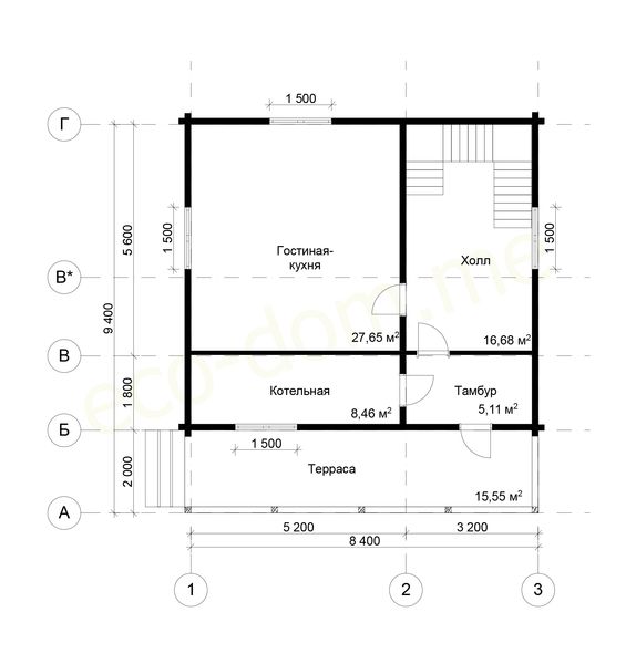
План схема Проект элитного дома из бруса 10х9 № ЭД-79

Высота стен первого этажа 3 метра.

Высота стен второго этажа 1,5 метра.

Высота рубленных фронтонов 3 метра.

Проект элитного дома из бруса 10х9 № ЭД-79 Проект элитного дома из бруса 10х9 № ЭД-79

Деревянный дом – это то, о чем мечтает чуть ли не каждый человек. Имея в распоряжении загородную резиденцию, вы сможете увлекательно проводить свободное время в обществе семьи и друзей или даже поселиться здесь на постоянной основе.

«Эко Дом Мне» занимается строительством домов под ключ, предлагая очень выгодные цены на услуги. За время своей работы мы реализовали огромное количество заказов в различных городах страны. В штате компании имеются квалифицированные проектировщики, инженеры и строители. Вам достаточно выбрать подходящий проект и заказать его. А если возникнут трудности с принятием решения, мы поможем!

Описание проекта дома из бруса 10 на 9

Удобство и практичность – вот главные критерии, на которые мы ориентируемся при разработке проектов загородной недвижимости. Чтобы вас стало понятно, о чем идет речь, расскажем о планировке брусового дома 10х9, представленного здесь:

  • Перед входом есть терраса площадью более 15 м кв.
  • На ней находится дверь, ведущая в тамбур.
  • В тамбуре еще две двери: одна ведет в котельную, а другая – в холл.
  • В холле располагается лестница, ведущая на второй этаж.
  • Также из него можно попасть в огромную гостиную-кухню, идеально подходящую для приема гостей.

А вот что открывается нашему взору, когда мы поднимаемся по лестнице на 2-й этаж:

  • Сразу же попадаем еще в один холл, площадь которого почти такая же, как и того, который располагается на 1-м этаже.
  • Из него можно пройти в две просторные спальни (их площадь почти одинаковая).
  • Также из холла можно выйти на лоджию (еще одна дверь на нее находится в дальней от лестницы спальне).

Достоинства проектов 2-этажных домов из бруса

Популярность загородной недвижимости, изготавливающейся из бруса, очень высока. Это обусловлено такими моментами:

  • Доступная стоимость материалов.
  • Экологичность.
  • Превосходные теплотехнические характеристики.
  • Экономия на внутренней отделке.
  • Экономия на фундаменте.

Как подать заявку?

Наша компания будет рада построить резиденцию, о которой вы мечтаете. Прежде чем приступить к работе, мы обсуждаем все тонкости, что обеспечивает результат максимально приближенный к ожиданиям клиента.

Чтобы подать заявку, вам достаточно связаться с нашим менеджером. Для этого заполните электронную форму или наберите один из номеров, размещенных на сайте.

В комплектацию дома под усадку входит:

Материалы:

  • Наружные стены,бруса 150*150 мм.,145*145 мм.,195*145 мм.,(уточнять);
  • Внутренние стены,брус 100*150 мм.,95*145 мм.,145*145 мм.,(уточнять);
  • Рубленные фронтоны(в зависимости от комплектации,возможно каркасного типа (уточнять);
  • Внутренние перегородки,в зависимости от комплектации,возможно каркасного типа либо из бруса(уточнять);
  • Лаги пола первого этажа брус 100*150 мм.,межэтажные,подстропильные,возможен второй свет в зависимости от комплектации(уточнять);
  • Стропильная конструкция,брус 50*150 мм.;
  • Контробрешётка брус 50*50 мм.;
  • Обрешётка крыши,доска 25*150 мм., 25*100 мм.;
  • Метизные изделия (скобы, гвозди...);
  • Межвенцевой утеплитель,джут (льноватин);
  • Рубероид, временная кровля(уточнять);
  • Материал на изготовление строительных лесов;
  • Гидроизоляция на фундамент, гидроизол;
  • Рабочий проект;
  • Погрузка и разгрузка пиломатериалов на участка Заказчика;

Перечень работ:

  • Монтаж сруба с внутренними стенами(в зависимости от комплектации);
  • Врезка балок пола, межэтажных, подстропильных(в зависимости от комплектации);
  • Прокладка межвенцового утеплителя джута (льноватина);
  • Прошкантовка стен деревянными нагелями;
  • Монтаж стропильной конструкции;
  • Укладка обрешётки;
  • Покрытие крыши временной кровлей рубероид(уточнять);
  • Укладка на фундамент гидроизоляции;
  • Монтаж и демонтаж строительных лесов;
  • Обработка нижних венцов и балок.

Фундамент,кровля и доставка расчитываются индивидуально.

Площадь общая: 142,03м2
Площадь полезная 141,80м2

Похожие проекты

Наши преимущества
Работаем без предоплаты!
Выезд на заключение договора - бесплатно!
Доставка в любую точку центрального региона!
Материал проходит обработку экологически чистым антисептиком для внутренних и наружных работ!
При заказе дома скидка на баню до 10% от стоимости!
Бесплатный выезд для проведения послеусадочных работ!
Отделочные работы нами построенных домов - скидки до 20%!
Строим дома любой сложности!
Бесплатный расчет Вашего проекта!
Делаем согласование проектов домов с БТИ (данная услуга осуществляется отдельно)!
Предлагаем услуги дизайнера по созданию визуального вида вашего будущего дома!
Видео отзывы
Есть вопросы по строительству дома?
Вы можете приложить файл с проектом, схемой объекта. Если файлов несколько, вы можете сжать их архиватором WinZip или WinRar.