Дом из бруса 11 на 8 № ЭД-44 строительство домов из бруса и бревна под ключ цены
Обратная связь

Проект дома из бруса 11х8 № ЭД-44

Цена

Брус простой 150х150 2418900 Купить
Брус профилированный 145х145 2840970 Купить
Брус профилированный 145х195 3327940 Купить
Проект дома из бруса 11х8 № ЭД-44 Проект дома из бруса 11х8 № ЭД-44 Проект дома из бруса 11х8 № ЭД-44 Проект дома из бруса 11х8 № ЭД-44 Проект дома из бруса 11х8 № ЭД-44 Проект дома из бруса 11х8 № ЭД-44

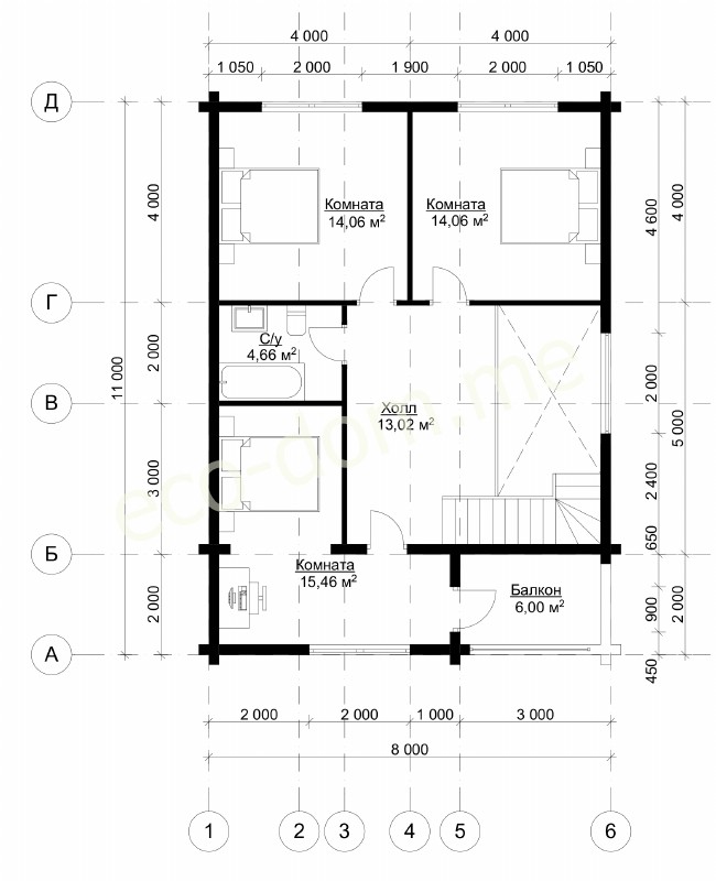
План схема Проект дома из бруса 11х8 № ЭД-44

Высота 1-го этажа 3 метра.

Высота стен 2-го этажа 1,5 метра.

Высота рубленных фронтонов 3 метра.

Проект дома из бруса 11х8 № ЭД-44 Проект дома из бруса 11х8 № ЭД-44

Проект жилого дома из бруса общей площадью 147 квадратных метров предназначен для проживания семьи из 3-5 человек, для которых здесь есть все необходимое:

  • комфортные спальни на самом теплом втором этаже;
  • входной тамбур;
  • два санузла;
  • специальное помещение для обслуживания печи.

Этот теплый рационально спланированный дом, в котором каждый квадратный метр используется с толком, прекрасно подойдет как для постоянного проживания, так и в качестве дачного дома, отдыхать в который планируется приезжать круглый год.

Проект дома из бруса 11 на 8

Особым достоинством проекта являются хорошо продуманные помещения для совместного времяпрепровождения:

  • гостиная,
  • столовая;
  • кухня.

Они расположены так, что практически представляют собой единое пространство, но в то же время отделены друг от друга. Семейные обеды и ужины хозяйке удобно готовить в кухне и подавать в столовую, благодаря широкой арке, объединяющей два эти помещения в единое целое. Столовая, в свою очередь, примыкает к гостиной, поэтому во время вечеринки или торжества гости смогут комфортно разместиться в этих двух комнатах.

Пространство гостиной значительно увеличено, за счет отсутствия глухой перегородки у ведущего к ней коридора. В итоге, можно говорить о просторной парадной зоне дома, в которой обитатели и гости не чувствуют себя стесненными. Дополняется эффект вторым светом в гостиной и галереей второго этажа, делающей проект действительно современным и просторным, несмотря на его небольшие размеры.

Ажурные перила балкона и крыльца, слуховые окошки и классическое оформление фасадов понравится любителем традиционных стилей в архитектуре.

Выгодная реализация проекта двухэтажного дома с компанией Эко Дом Мне

Чтобы стоимость реализации проекта была минимальной, а качество высоким, закажите строительство под ключ в нашей компании. Коллектив опытных мастеров, успешно сдавший в эксплуатацию не один десяток домов из бруса, выполнит работы качественно и в срок. Вы сможете получить постройку без лишних хлопот и частых визитов на объект. Наши бригады работают ответственно и аккуратно, соблюдая сроки и обязательства, прописанные в договоре.

Звоните менеджерам нашей компании, чтобы обсудить детали понравившегося проекта и узнать его цену с отделкой. Мы внесем все необходимые изменения в базовый проект и создадим дом из бруса, удобный именно для вашей семьи.

В комплектацию дома под усадку входит:

Материалы:

  • Наружные стены,бруса 150*150 мм.,145*145 мм.,195*145 мм.,(уточнять);
  • Внутренние стены,брус 100*150 мм.,95*145 мм.,145*145 мм.,(уточнять);
  • Рубленные фронтоны(в зависимости от комплектации,возможно каркасного типа (уточнять);
  • Внутренние перегородки,в зависимости от комплектации,возможно каркасного типа либо из бруса(уточнять);
  • Лаги пола первого этажа брус 100*150 мм.,межэтажные,подстропильные,возможен второй свет в зависимости от комплектации(уточнять);
  • Стропильная конструкция,брус 50*150 мм.;
  • Контробрешётка брус 50*50 мм.;
  • Обрешётка крыши,доска 25*150 мм., 25*100 мм.;
  • Метизные изделия (скобы, гвозди...);
  • Межвенцевой утеплитель,джут (льноватин);
  • Рубероид, временная кровля(уточнять);
  • Материал на изготовление строительных лесов;
  • Гидроизоляция на фундамент, гидроизол;
  • Рабочий проект;
  • Погрузка и разгрузка пиломатериалов на участка Заказчика;

Перечень работ:

  • Монтаж сруба с внутренними стенами(в зависимости от комплектации);
  • Врезка балок пола, межэтажных, подстропильных(в зависимости от комплектации);
  • Прокладка межвенцового утеплителя джута (льноватина);
  • Прошкантовка стен деревянными нагелями;
  • Монтаж стропильной конструкции;
  • Укладка обрешётки;
  • Покрытие крыши временной кровлей рубероид(уточнять);
  • Укладка на фундамент гидроизоляции;
  • Монтаж и демонтаж строительных лесов;
  • Обработка нижних венцов и балок.

Фундамент,кровля и доставка расчитываются индивидуально.

Площадь общая: 140,39м2
Площадь полезная 142,83м2

Похожие проекты

Наши преимущества
Работаем без предоплаты!
Выезд на заключение договора - бесплатно!
Доставка в любую точку центрального региона!
Материал проходит обработку экологически чистым антисептиком для внутренних и наружных работ!
При заказе дома скидка на баню до 10% от стоимости!
Бесплатный выезд для проведения послеусадочных работ!
Отделочные работы нами построенных домов - скидки до 20%!
Строим дома любой сложности!
Бесплатный расчет Вашего проекта!
Делаем согласование проектов домов с БТИ (данная услуга осуществляется отдельно)!
Предлагаем услуги дизайнера по созданию визуального вида вашего будущего дома!
Видео отзывы
Есть вопросы по строительству дома?
Вы можете приложить файл с проектом, схемой объекта. Если файлов несколько, вы можете сжать их архиватором WinZip или WinRar.