Дом из бруса 13 на 10 № ЭД-48 строительство домов из бруса и бревна под ключ цены
Обратная связь

Проект дома из бруса 13х10 № ЭД-48

Цена

Брус простой 150х150 2358510 Купить
Брус профилированный 145х145 2864180 Купить
Брус профилированный 145х195 3351150 Купить
Проект дома из бруса 13х10 № ЭД-48 Проект дома из бруса 13х10 № ЭД-48 Проект дома из бруса 13х10 № ЭД-48 Проект дома из бруса 13х10 № ЭД-48 Проект дома из бруса 13х10 № ЭД-48 Проект дома из бруса 13х10 № ЭД-48

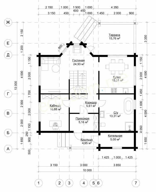
План схема Проект дома из бруса 13х10 № ЭД-48

Высота 1-го этажа 3 метра.

Высота стен 2-го этажа 1 метр.

Высота рубленных фронтонов 3 метра.

Проект дома из бруса 13х10 № ЭД-48 Проект дома из бруса 13х10 № ЭД-48

Сотрудники «Эко Дом Мне» принимают заявки на строительство комфортабельного одноэтажного дома из бруса 13х10 по проекту ЭД-48. Это прекрасный вариант жилья для всей семьи по демократичной стоимости. Возведение конструкции происходит из простого или профилированного бруса. Натуральное дерево во все времена отлично выглядит и вызывает истинное восхищение. Его не нужно дополнительно декорировать, благодаря чему потребность в отделочных работах по завершению стройки полностью отпадает. Это хорошая экономия бюджета без потерь в качестве.

Основными характеристиками объекта по данному проекту являются:

  • низкая цена;
  • высокие потолки — 3 метра;
  • кухня с выходом на террасу;
  • 4 спальни.

Кроме этого, также в доме будут обустроены: санузел, ванная, холл, гостиная, тамбур, коридор, крыльцо и собственная котельная. Это идеальный вариант жилья, в котором можно отдыхать, развлекаться, встречать гостей и получать при этом максимум удовольствия.

Проект дома из бруса 13 на 10

Вы можете заказать строительство по готовому проекту № ЭД-48 по доступной стоимости. Если вас не совсем устраивают параметры потенциальной постройки, возможно внесение некоторых корректив. А именно, мы сможем изменить высоту, ширину и длину объекта с учетом ваших индивидуальных пожеланий.

Почему стоит обращаться именно в нашу организацию? Неоспоримыми достоинствами «Эко Дом Мне» являются:

  • бригады квалифицированных и опытных строителей в нескольких поколениях;
  • разумные цены;
  • пятилетняя гарантия на все виды работ;
  • строительство из бруса без предоплаты;
  • 20% скидка на отделочные работы в случае заказа строительства по нашему проекту;
  • безупречная репутация;
  • бытовка в подарок;
  • 10% скидка на возведение бани.

В коттеджах из простого либо профилированного бруса всегда царит гармония, свежий воздух и благоприятный микроклимат. Зимой здесь тепло, а летом — прохладно. Натуральный и экологически чистый материал не выделяет токсинов и аллергенов, стены дома «дышат». Благодаря этому находиться и жить в таких условиях всегда хорошо и приятно.

Проект одноэтажного дома № ЭД-48

Если вы собираетесь стать клиентом нашей компании и заказать возведение постройки по проекту № ЭД-48, обращайтесь к сотрудникам «Эко Дом Мне» по контактным телефонам или же через способ обратной связи.

В комплектацию дома под усадку входит:

Материалы:

  • Наружные стены,бруса 150*150 мм.,145*145 мм.,195*145 мм.,(уточнять);
  • Внутренние стены,брус 100*150 мм.,95*145 мм.,145*145 мм.,(уточнять);
  • Рубленные фронтоны(в зависимости от комплектации,возможно каркасного типа (уточнять);
  • Внутренние перегородки,в зависимости от комплектации,возможно каркасного типа либо из бруса(уточнять);
  • Лаги пола первого этажа брус 100*150 мм.,межэтажные,подстропильные,возможен второй свет в зависимости от комплектации(уточнять);
  • Стропильная конструкция,брус 50*150 мм.;
  • Контробрешётка брус 50*50 мм.;
  • Обрешётка крыши,доска 25*150 мм., 25*100 мм.;
  • Метизные изделия (скобы, гвозди...);
  • Межвенцевой утеплитель,джут (льноватин);
  • Рубероид, временная кровля(уточнять);
  • Материал на изготовление строительных лесов;
  • Гидроизоляция на фундамент, гидроизол;
  • Рабочий проект;
  • Погрузка и разгрузка пиломатериалов на участка Заказчика;

Перечень работ:

  • Монтаж сруба с внутренними стенами(в зависимости от комплектации);
  • Врезка балок пола, межэтажных, подстропильных(в зависимости от комплектации);
  • Прокладка межвенцового утеплителя джута (льноватина);
  • Прошкантовка стен деревянными нагелями;
  • Монтаж стропильной конструкции;
  • Укладка обрешётки;
  • Покрытие крыши временной кровлей рубероид(уточнять);
  • Укладка на фундамент гидроизоляции;
  • Монтаж и демонтаж строительных лесов;
  • Обработка нижних венцов и балок.

Фундамент,кровля и доставка расчитываются индивидуально.

Площадь общая: 165,35м2
Площадь полезная 169,03м2

Похожие проекты

Наши преимущества
Работаем без предоплаты!
Выезд на заключение договора - бесплатно!
Доставка в любую точку центрального региона!
Материал проходит обработку экологически чистым антисептиком для внутренних и наружных работ!
При заказе дома скидка на баню до 10% от стоимости!
Бесплатный выезд для проведения послеусадочных работ!
Отделочные работы нами построенных домов - скидки до 20%!
Строим дома любой сложности!
Бесплатный расчет Вашего проекта!
Делаем согласование проектов домов с БТИ (данная услуга осуществляется отдельно)!
Предлагаем услуги дизайнера по созданию визуального вида вашего будущего дома!
Видео отзывы
Есть вопросы по строительству дома?
Вы можете приложить файл с проектом, схемой объекта. Если файлов несколько, вы можете сжать их архиватором WinZip или WinRar.