Дом из бруса 10 на 9 № ЭД-76 строительство домов из бруса и бревна под ключ цены
Обратная связь

Проект дома из бруса 10х9 № ЭД-76

Цена

Брус простой 150х150 2319130 Купить
Брус профилированный 145х145 2620640 Купить
Брус профилированный 145х195 3084400 Купить
Проект дома № ЭД-76 Проект дома № ЭД-76 Проект дома № ЭД-76 Проект дома № ЭД-76 Проект дома № ЭД-76 Проект дома № ЭД-76

План схема Проект дома № ЭД-76

Высота стен первого этажа 3 метра.

Высота стен второго этажа 1,5 метра.

Высота рубленных фронтонов 3 метра.

Проект дома № ЭД-76 Проект дома № ЭД-76

«Эко Дом Мне» – это строительная компания, которая возводит объекты недвижимости под ключ по всей России. На данной странице мы предлагаем ознакомиться с проектом брусового дома площадью 10 на 9 м. В нашем распоряжении имеется собственный лесной фонд и оборудование для обработки дерева. Поэтому вы можете рассчитывать на высокое качество материалов и выгодные цены на них.

Проект дома из бруса 10 на 9: общие характеристики

Если вы любите простор, этот проект станет идеальным решением. Рассмотрим планировку первого этажа:

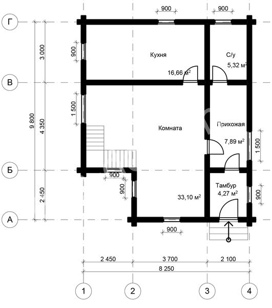
  • Сразу же за входной дверью находится тамбур.
  • Из него вы попадаете в прихожую с широким окном. Площадь этого помещения составляет почти 8 м кв.
  • Прямо по курсу – санузел.
  • Слева – просторная комната (более 33 м кв.), идеально подходящая для отдыха и приема гостей.
  • Из комнаты можно попасть в кухню. Она очень светлая за счет того, что здесь предусмотрено 2 окна.
  • Также из комнаты ведет лестница на 2-й этаж.

Проект 2-этажного дома: описание 2-го этажа

Второй этаж устроен следующим образом:

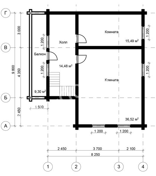
  • Поднявшись по лестнице, вы попадаете в холл.
  • С одной стороны находится две комнаты. Площадь одной составляет 15,49 м кв., а другой – 36,52 м кв.
  • С другой стороны располагается широкий балкон, где можно отдыхать в теплое время года.

Как вы можете убедиться, этот дом из бруса идеально подходит для жизни большой семьей. А доступная стоимость проекта делает данное предложение максимально привлекательным.

Чем хороши дома из бруса?

Брус – это один из наиболее популярных материалов, использующихся в загородном домостроении. Вот его основные достоинства:

  • Для возведения не требуется много времени.
  • Это экологически чистый материал, не наносящий вреда здоровью человека.
  • Готовая постройка имеет привлекательный внешний вид даже без отделки.
  • В зимнее время года в брусовом доме тепло, а летом – прохладно.

Почему стоит обращаться в нашу компанию?

Строительство загородной недвижимости из древесины – основное направление нашей деятельности. Обращаясь в «Эко Дом Мне», вы можете рассчитывать на такие преимущества:

  • Профессионализм.
  • Выгодная цена.
  • Оперативность.
  • Реализация проекта с учетом индивидуальных пожеланий клиента.

Если вы хотите связаться с менеджером и обсудить условия сотрудничества, оставьте заявку или позвоните по телефону, который указан на сайте.

В комплектацию дома под усадку входит:

Материалы:

  • Наружные стены,бруса 150*150 мм.,145*145 мм.,195*145 мм.,(уточнять);
  • Внутренние стены,брус 100*150 мм.,95*145 мм.,145*145 мм.,(уточнять);
  • Рубленные фронтоны(в зависимости от комплектации,возможно каркасного типа (уточнять);
  • Внутренние перегородки,в зависимости от комплектации,возможно каркасного типа либо из бруса(уточнять);
  • Лаги пола первого этажа брус 100*150 мм.,межэтажные,подстропильные,возможен второй свет в зависимости от комплектации(уточнять);
  • Стропильная конструкция,брус 50*150 мм.;
  • Контробрешётка брус 50*50 мм.;
  • Обрешётка крыши,доска 25*150 мм., 25*100 мм.;
  • Метизные изделия (скобы, гвозди...);
  • Межвенцевой утеплитель,джут (льноватин);
  • Рубероид, временная кровля(уточнять);
  • Материал на изготовление строительных лесов;
  • Гидроизоляция на фундамент, гидроизол;
  • Рабочий проект;
  • Погрузка и разгрузка пиломатериалов на участка Заказчика;

Перечень работ:

  • Монтаж сруба с внутренними стенами(в зависимости от комплектации);
  • Врезка балок пола, межэтажных, подстропильных(в зависимости от комплектации);
  • Прокладка межвенцового утеплителя джута (льноватина);
  • Прошкантовка стен деревянными нагелями;
  • Монтаж стропильной конструкции;
  • Укладка обрешётки;
  • Покрытие крыши временной кровлей рубероид(уточнять);
  • Укладка на фундамент гидроизоляции;
  • Монтаж и демонтаж строительных лесов;
  • Обработка нижних венцов и балок.

Фундамент,кровля и доставка расчитываются индивидуально.

Площадь общая: 143,03м2
Площадь полезная 140,44м2

Похожие проекты

Наши преимущества
Работаем без предоплаты!
Выезд на заключение договора - бесплатно!
Доставка в любую точку центрального региона!
Материал проходит обработку экологически чистым антисептиком для внутренних и наружных работ!
При заказе дома скидка на баню до 10% от стоимости!
Бесплатный выезд для проведения послеусадочных работ!
Отделочные работы нами построенных домов - скидки до 20%!
Строим дома любой сложности!
Бесплатный расчет Вашего проекта!
Делаем согласование проектов домов с БТИ (данная услуга осуществляется отдельно)!
Предлагаем услуги дизайнера по созданию визуального вида вашего будущего дома!
Видео отзывы
Есть вопросы по строительству дома?
Вы можете приложить файл с проектом, схемой объекта. Если файлов несколько, вы можете сжать их архиватором WinZip или WinRar.