Дом из бруса 9 на 13 № ЭД-34 строительство домов из бруса и бревна под ключ цены
Обратная связь

Проект дома из бруса 9х13 № ЭД-34

Цена

Брус простой 150х150 1936440 Купить
Брус профилированный 145х145 2168430 Купить
Брус профилированный 145х195 2539460 Купить
Проект дома из бруса 9х13 № ЭД-34 Проект дома из бруса 9х13 № ЭД-34 Проект дома из бруса 9х13 № ЭД-34 Проект дома из бруса 9х13 № ЭД-34 Проект дома из бруса 9х13 № ЭД-34 Проект дома из бруса 9х13 № ЭД-34

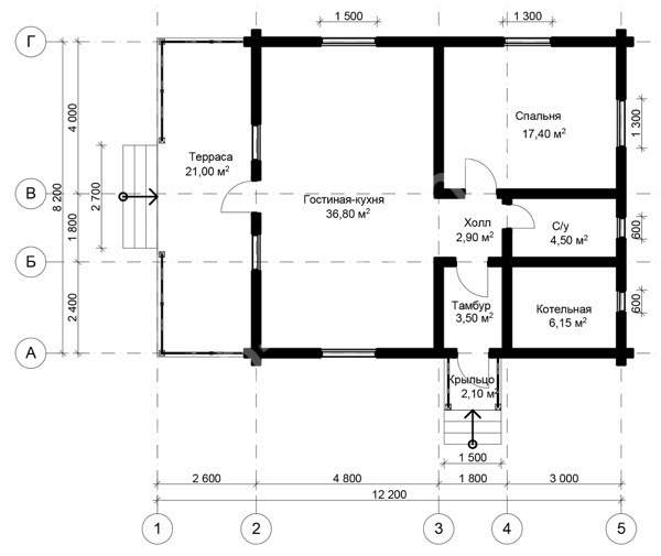
План схема Проект дома из бруса 9х13 № ЭД-34

Высота первого этажа 3 метра.

Высота рубленных фронтонов 3 метра.

Проект дома из бруса 9х13 № ЭД-34

Компания «Эко Дом Мне» принимает заказы на строительство качественных и недорогих домов из бруса 9х13 по готовому проекту № ЭД-34. Всего через несколько недель вы сможете получить красивый, современный и гармоничный одноэтажный дом по демократичной стоимости. Данный проект характеризуется:

  • высотой стен в 3 метра;
  • просторной гостиной, совмещенной с кухней, общей площадью 36 кв. м;
  • большой спальней площадью 17 кв. м;
  • террасой площадью в 21 кв. м.

Здесь также будут размещены: санузел, тамбур, котельная и крыльцо. Это прекрасный вариант для семьи, в которой ценят большие пространства и отсутствие лишних деталей. Заказать возведение объекта недвижимости можно как из простого, так и из профилированного бруса.

Современный проект дома из бруса 9 на 13

Дом из бруса 9 на 13 № ЭД-34 выглядит современно и аккуратно. Он вызовет восторг не только у своих обладателей, но и у сторонних прохожих. Время сборки коробки занимает не более нескольких недель. Отдельный временной промежуток требуется для возведения фундамента, укрепления стен и проведения отделочных работ. Все эти дополнительные услуги по доступной цене можно заказать в компании «Эко Дом Мне».

Готовые проекты, которые представлены на нашем сайте, можно изменять по длине, ширине и высоте. Уточнить стоимость коттеджа с учетом внесенных корректировок можно у сотрудников нашей фирмы. При заказе строительства по нашим проектам вы можете получить 20% скидку на отделочные работы и 10% скидку на строительство бани. Бытовку вы получите от нас абсолютно бесплатно.

Отличительными чертами «Эко Дом Мне» являются:

  • высокое качество;
  • низкие цены;
  • отличный результат без разочарований клиентов.

Проект одноэтажного дома № ЭД-34

Компания «Эко Дом Мне» ведет строительство объектов недвижимости во всех регионах РФ. Если вас заинтересовал проект одноэтажной постройки № ЭД-34, обратитесь к специалистам нашей компании. Они расскажут обо всех преимуществах и достоинствах данного проекта, предложат альтернативные варианты и примут заявку на строительство. Отгрузка материалов происходит в трехдневный срок. Вносить предоплату при заказе домов из бруса не нужно.

Позвоните нам или оставьте свое электронное сообщение через специальную форму, размещенную на сайте компании «Эко Дом Мне».

В состав стоимости входит:

Материалы:
  1. Брус 150х150 мм на наружные несущие стены;
  2. Брус 150х150 мм наружные фронтоны;
  3. Брус 100х150 мм на внутренние перегородки;
  4. Брус 100х150 мм на балки перекрытий ( половые, межэтажные, подстропильные );
  5. Доска 50х150 мм на стропильную конструкцию;
  6. Доска 25х100 мм, 25х150 мм на обрешётку;
  7. Доска 25х100 мм, 25х150 мм на черновой пол;
  8. Брусок 50х50;
  9. Метизные изделия ( скобы, гвозди, саморезы );
  10. Межвенцовый утеплитель - льноватин;
  11. Рубероид на временную кровлю крыши;
  12. Материал на изготовление строительных лесов;
  13. Гидроизоляция на фундамент - гидроизол;
  14. Деревянные нагеля;
  15. Рабочий проект;
Перечень работ:
  1. Монтаж сруба с внутренними перегородками;
  2. Врезка балок половых, межэтажных, подстропильных;
  3. Прокладка межвенцового утеплителя льноватина;
  4. Подвивка льноватина;
  5. Прошкантовка стен деревянными нагелями;
  6. Монтаж стропильной конструкции;
  7. Укладка обрешётки;
  8. Укладка черновых полов;
  9. Кровля временной кровлей-рубероидом;
  10. Укладка на фундамент гидроизоляции;
  11. Монтаж и демонтаж строительных лесов.
  12. Обработка нижних венцов и балок в подарок
Если Вам понравился проект дома из бруса, Вы можете заказать его строительство или строительство сруба двухэтажного прямо сейчас оформив заявку позвонив нашим менеджерам.
Доставка, фундамент и чистовая кровля рассчитываются индивидуально!
Площадь общая: 94,35м2
Площадь полезная 90,85м2

Похожие проекты

Наши преимущества
Работаем без предоплаты!
Выезд на заключение договора - бесплатно!
Доставка в любую точку центрального региона!
Материал проходит обработку экологически чистым антисептиком для внутренних и наружных работ!
При заказе дома скидка на баню до 10% от стоимости!
Бесплатный выезд для проведения послеусадочных работ!
Отделочные работы нами построенных домов - скидки до 20%!
Строим дома любой сложности!
Бесплатный расчет Вашего проекта!
Делаем согласование проектов домов с БТИ (данная услуга осуществляется отдельно)!
Предлагаем услуги дизайнера по созданию визуального вида вашего будущего дома!
Видео отзывы
Есть вопросы по строительству дома?
Вы можете приложить файл с проектом, схемой объекта. Если файлов несколько, вы можете сжать их архиватором WinZip или WinRar.