Дом из бруса 13 на 10 № ЭД-57 строительство домов из бруса и бревна под ключ цены
Обратная связь

Проект дома из бруса 13х10 № ЭД-57

Цена

Брус простой 150х150 2400310 Купить
Брус профилированный 145х145 2817760 Купить
Брус профилированный 145х195 3281630 Купить
Проект дома из бруса 13х10 № ЭД-57 Проект дома из бруса 13х10 № ЭД-57 Проект дома из бруса 13х10 № ЭД-57 Проект дома из бруса 13х10 № ЭД-57 Проект дома из бруса 13х10 № ЭД-57 Проект дома из бруса 13х10 № ЭД-57

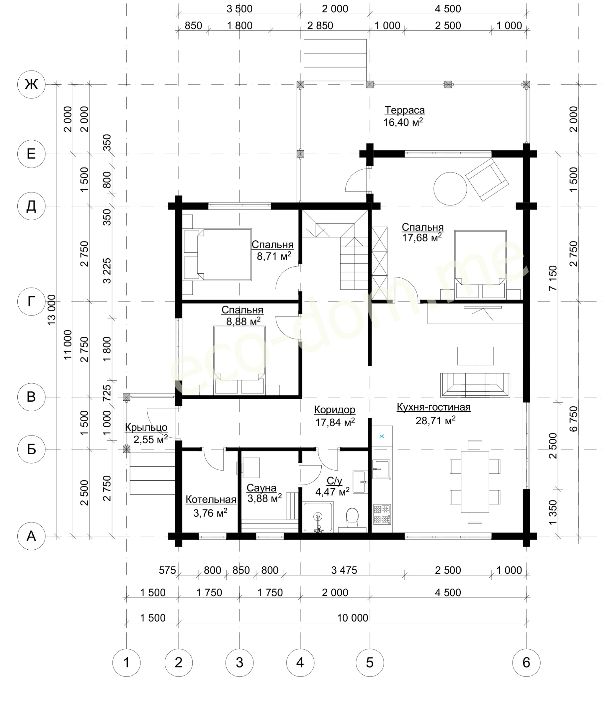
План схема Проект дома из бруса 13х10 № ЭД-57

Высота стен первого этажа 3 метра.

Высота стен второго этажа 1,5 метра.

Высота рубленных фронтонов 3 метра.

Проект дома из бруса 13х10 № ЭД-57 Проект дома из бруса 13х10 № ЭД-57

Дом из бруса 13 на 10 подойдет любителям загородного отдыха или станет отличной реализацией вашей мечты о постоянном проживании на природе. Компактное расположение в доме всех необходимых комнат для отдыха и жизни позволяет рационально использовать пространство и создать максимально комфортную домашнюю обстановку.

Проект дома из бруса 13 на 10

Первый этаж постройки разработан для развлечений и совместного времяпрепровождения. Здесь расположена просторная гостиная, объединенная с кухней-столовой в единое пространство. Вам будет комфортно проводить здесь время с гостями, готовить и подавать угощение, не покидая теплую компанию.

Выход из гостиной на террасу – традиционный элемент для загородного дома, поскольку позволяет в теплый летний вечер объединить внутреннее и внешнее пространство, и с легкостью организовать барбекю или просто посидеть на свежем воздухе.

Проект включает небольшую, но функциональную сауну, которая занимает немного места и при этом оборудована:

  • парной;
  • душевой;
  • санузлом.

В таком доме вы сможете вкусить все удовольствия загородного отдыха.

Особого внимания заслуживают вспомогательные помещения. Наличие теплых тамбуров, котельной, просторной прихожей делают дом удобным для круглогодичного проживания. Спальни, расположенные на самом теплом втором этаже, позволят вам проводить здесь время зимой с тем же комфортом, что и летом.

В четырех спальнях дома смогут удобно расположиться все члены большой семьи или остаться на ночь засидевшиеся гости. Вместительные гардеробные и два просторных санузла позволят расположиться с комфортом и не испытывать стеснения большой компании. Выход на балкон из каждой спальни второго этажа – ваш шанс насладиться свежим воздухом и ароматом природы теплым летним утром.

Реализация проекта одноэтажного дома с мансардой

Заказать строительство дома по этому проекту вы можете в компании «Эко Дом Мне». Мастера с многолетним опытом, владеющие секретами возведения построек из бруса, которые передаются из поколения в поколение, построят дом на вашем участке в самые короткие сроки. Обратившись к нам, вы можете рассчитывать на:

  • своевременное заверение проекта;
  • создание постройки под ключ;
  • фиксирование стоимости в договоре.

Цена наших услуг невелика с учетом высокого качества и скорости строительства. Звоните, и начните дорогу к реализации мечты о вашем загородном доме.

В комплектацию дома под усадку входит:

Материалы:

  • Наружные стены,бруса 150*150 мм.,145*145 мм.,195*145 мм.,(уточнять);
  • Внутренние стены,брус 100*150 мм.,95*145 мм.,145*145 мм.,(уточнять);
  • Рубленные фронтоны(в зависимости от комплектации,возможно каркасного типа (уточнять);
  • Внутренние перегородки,в зависимости от комплектации,возможно каркасного типа либо из бруса(уточнять);
  • Лаги пола первого этажа брус 100*150 мм.,межэтажные,подстропильные,возможен второй свет в зависимости от комплектации(уточнять);
  • Стропильная конструкция,брус 50*150 мм.;
  • Контробрешётка брус 50*50 мм.;
  • Обрешётка крыши,доска 25*150 мм., 25*100 мм.;
  • Метизные изделия (скобы, гвозди...);
  • Межвенцевой утеплитель,джут (льноватин);
  • Рубероид, временная кровля(уточнять);
  • Материал на изготовление строительных лесов;
  • Гидроизоляция на фундамент, гидроизол;
  • Рабочий проект;
  • Погрузка и разгрузка пиломатериалов на участка Заказчика;

Перечень работ:

  • Монтаж сруба с внутренними стенами(в зависимости от комплектации);
  • Врезка балок пола, межэтажных, подстропильных(в зависимости от комплектации);
  • Прокладка межвенцового утеплителя джута (льноватина);
  • Прошкантовка стен деревянными нагелями;
  • Монтаж стропильной конструкции;
  • Укладка обрешётки;
  • Покрытие крыши временной кровлей рубероид(уточнять);
  • Укладка на фундамент гидроизоляции;
  • Монтаж и демонтаж строительных лесов;
  • Обработка нижних венцов и балок.

Фундамент,кровля и доставка расчитываются индивидуально.

Площадь общая: 198,82м2
Площадь полезная 200,26м2

Похожие проекты

Наши преимущества
Работаем без предоплаты!
Выезд на заключение договора - бесплатно!
Доставка в любую точку центрального региона!
Материал проходит обработку экологически чистым антисептиком для внутренних и наружных работ!
При заказе дома скидка на баню до 10% от стоимости!
Бесплатный выезд для проведения послеусадочных работ!
Отделочные работы нами построенных домов - скидки до 20%!
Строим дома любой сложности!
Бесплатный расчет Вашего проекта!
Делаем согласование проектов домов с БТИ (данная услуга осуществляется отдельно)!
Предлагаем услуги дизайнера по созданию визуального вида вашего будущего дома!
Видео отзывы
Есть вопросы по строительству дома?
Вы можете приложить файл с проектом, схемой объекта. Если файлов несколько, вы можете сжать их архиватором WinZip или WinRar.