Дом из бруса 9 на 10 № ЭД-67 строительство домов из бруса и бревна под ключ цены
Обратная связь

Проект дома из бруса 9х10 № ЭД-67

Цена

Брус простой 150х150 2084940 Купить
Брус профилированный 145х145 2358510 Купить
Брус профилированный 145х195 2546390 Купить
Проект дома № ЭД-67 Проект дома № ЭД-67 Проект дома № ЭД-67 Проект дома № ЭД-67 Проект дома № ЭД-67 Проект дома № ЭД-67

План схема Проект дома № ЭД-67

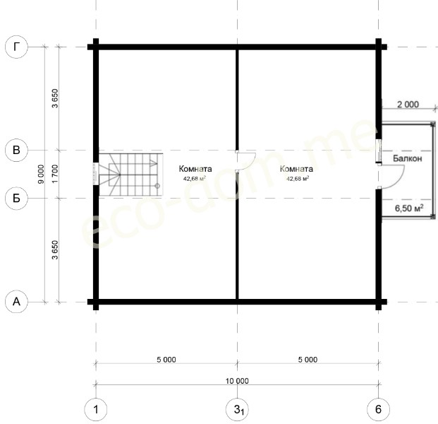
Высота стен первого этажа 3 метра.

Высота стен второго этажа 0,8 метра.

Высота рубленных фронтонов 3,5 метра.

Проект дома № ЭД-67 Проект дома № ЭД-67

Компания «Эко Дом Мне» принимает заказы на строительство деревянных домов из простого или профилированного бруса по проекту № ЭД-67 с размерами 9х10 метров. Это идеальное предложение для тех, кто всегда хотел жить в большом и просторном доме, где нет ограничений в пространстве, существует полная свобода действий.

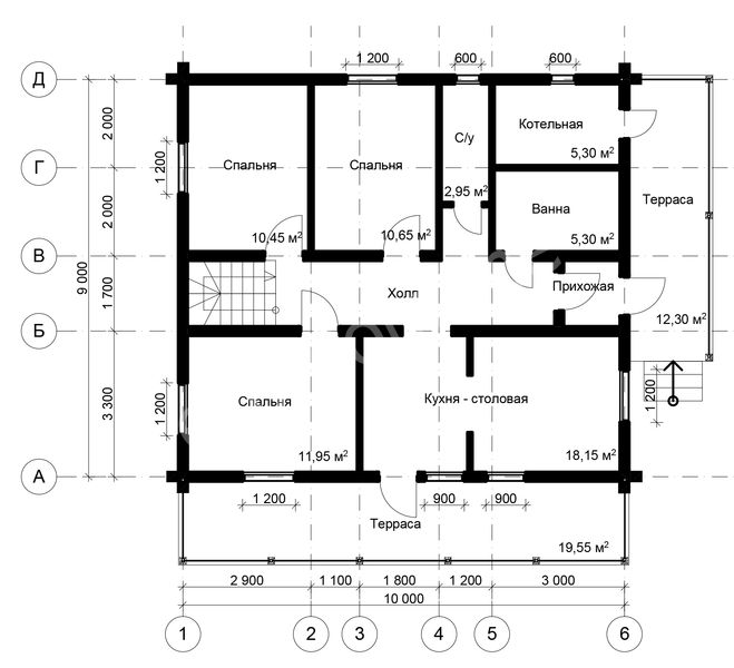
На первом этаже постройки вас будут ожидать:

  • сразу 3 комфортных спальни;
  • кухня, совмещенная со столовой площадью более 18 квадратов;
  • большая терраса;
  • ванная комната;
  • санузел;
  • холл.

Здесь вы сможете не только жить своей семьей, но и регулярно принимать гостей, предоставляя им места для ночлега. Комнаты размещены таким образом, что зоны релакса не пересекаются с помещениями общего назначения, например, кухней или ванной. Это удобно и очень важно для тех, кто ценит комфорт своей домашней жизни.

Мансардный этаж можно использовать для организации собственного спортивного зала с тренажерами и бильярдным столом.

Отличный проект дома из бруса 9 на 10: основные преимущества

Деревянный дом из бруса размером 9 на 10 метров можно построить в рекордные сроки — всего за 4 недели. Для отделки готовой конструкции или заливки фундамента потребуется дополнительное время, которое обговаривается с представителем фирмы «Эко Дом Мне» перед подписанием договора. Заказать сопутствующие услуги можно и после завершения возведения конструкции. В этом случае вы можете рассчитывать на отличные скидки и приятные цены.

Главными преимуществами домов из бруса являются:

  • оптимальная стоимость;
  • экологичность и полная безопасность;
  • длительный срок службы;
  • хороший микроклимат;
  • отсутствие необходимости в декоративной отделке.

Фактура бруса уникальна. Она завораживает взгляды и вызывает неподдельный восторг.  Деревянные поверхности можно не украшать обоями или другими материалами. Стены из бруса будут отлично смотреться как изнутри, так и снаружи.

Как заказать строительство мансардного дома по проекту № ЭД-67

Чтобы стать хозяином дома, созданного по проекту № ЭД-67, обратитесь в компанию «Эко Дом Мне». Профессиональные бригады строителей реализуют ваши желания и предоставят безукоризненный результат. Звоните и делайте свои заказы в удобное для вас время. Вы также можете воспользоваться обратной связью через сайт.

В комплектацию дома под усадку входит:

Материалы:

  • Наружные стены,бруса 150*150 мм.,145*145 мм.,195*145 мм.,(уточнять);
  • Внутренние стены,брус 100*150 мм.,95*145 мм.,145*145 мм.,(уточнять);
  • Рубленные фронтоны(в зависимости от комплектации,возможно каркасного типа (уточнять);
  • Внутренние перегородки,в зависимости от комплектации,возможно каркасного типа либо из бруса(уточнять);
  • Лаги пола первого этажа брус 100*150 мм.,межэтажные,подстропильные,возможен второй свет в зависимости от комплектации(уточнять);
  • Стропильная конструкция,брус 50*150 мм.;
  • Контробрешётка брус 50*50 мм.;
  • Обрешётка крыши,доска 25*150 мм., 25*100 мм.;
  • Метизные изделия (скобы, гвозди...);
  • Межвенцевой утеплитель,джут (льноватин);
  • Рубероид, временная кровля(уточнять);
  • Материал на изготовление строительных лесов;
  • Гидроизоляция на фундамент, гидроизол;
  • Рабочий проект;
  • Погрузка и разгрузка пиломатериалов на участка Заказчика;

Перечень работ:

  • Монтаж сруба с внутренними стенами(в зависимости от комплектации);
  • Врезка балок пола, межэтажных, подстропильных(в зависимости от комплектации);
  • Прокладка межвенцового утеплителя джута (льноватина);
  • Прошкантовка стен деревянными нагелями;
  • Монтаж стропильной конструкции;
  • Укладка обрешётки;
  • Покрытие крыши временной кровлей рубероид(уточнять);
  • Укладка на фундамент гидроизоляции;
  • Монтаж и демонтаж строительных лесов;
  • Обработка нижних венцов и балок.

Фундамент,кровля и доставка расчитываются индивидуально.

Площадь общая: 203,06м2
Площадь полезная 205,84м2

Похожие проекты

Наши преимущества
Работаем без предоплаты!
Выезд на заключение договора - бесплатно!
Доставка в любую точку центрального региона!
Материал проходит обработку экологически чистым антисептиком для внутренних и наружных работ!
При заказе дома скидка на баню до 10% от стоимости!
Бесплатный выезд для проведения послеусадочных работ!
Отделочные работы нами построенных домов - скидки до 20%!
Строим дома любой сложности!
Бесплатный расчет Вашего проекта!
Делаем согласование проектов домов с БТИ (данная услуга осуществляется отдельно)!
Предлагаем услуги дизайнера по созданию визуального вида вашего будущего дома!
Видео отзывы
Есть вопросы по строительству дома?
Вы можете приложить файл с проектом, схемой объекта. Если файлов несколько, вы можете сжать их архиватором WinZip или WinRar.