Дом из бруса 8 на 10 № ЭД-64 строительство домов из бруса и бревна под ключ цены
Обратная связь

Проект дома из бруса 8х10 № ЭД-64

Цена

Брус простой 150х150 2059420 Купить
Брус профилированный 145х145 2356200 Купить
Брус профилированный 145х195 2771340 Купить
Проект дома № ЭД-64 Проект дома № ЭД-64 Проект дома № ЭД-64 Проект дома № ЭД-64 Проект дома № ЭД-64 Проект дома № ЭД-64

План схема Проект дома № ЭД-64

Высота стен первого этажа 3 метра.

Высота стен второго этажа 1,2 метра.

Высота рубленных фронтонов 2,5 метра.

Проект дома № ЭД-64 Проект дома № ЭД-64

Компания «Эко Дом Мне» занимается ведением строительства отличных, современных и практичных деревянных домов по готовым проектам. Рекомендуем обратить внимание на проект № ЭД-64 с размерами основания 8х10. Это двухэтажная конструкция, которая возводится за несколько недель. Заливка фундамента, отделочные и электромонтажные работы выполняются за дополнительную плату и в отдельные временные рамки.

Главными преимуществами заказа построек по готовым проектам являются:

  • доступные цены;
  • безупречное исполнение;
  • натуральные материалы;
  • удобные планировки;
  • возможность внесения корректировок по ширине, высоте и длине.

Проект дома из бруса 8 на 10

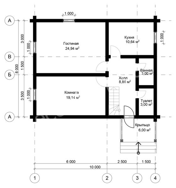
Согласно проекту дома 8 на 10 № ЭД-64, на первом этаже будут располагаться:

  • гостиная зона;
  • жилая комната;
  • ванная комната;
  • холл;
  • туалет;
  • просторная кухня;
  • крыльцо.

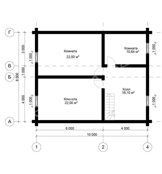
Наверху — три жилые комнаты, которые можно применить в качестве спален, и холл. Спальни просторные и одновременно с этим светлые, уютные. Две из них имеют площадь 22 квадратных метра и еще одна — 10 квадратных метров. Данный вариант отлично подходит для семей с детьми и часто приезжающими гостями.

Строительство характеризуется не только быстрыми сроками реализации, но и демократичной стоимостью. Цена объекта составляет от 778000 рублей до 1065000 рублей. Стоимость зависит от вида бруса, который может быть профилированным или простым. Обращаясь за строительством в компанию «Эко Дом Мне», вы сможете получить дополнительные скидки на отделку, а также постройку бани или заливку фундамента. Специалисты фирмы выполнят полную антисептическую обработку конструкции постройки, благодаря чему деревянный дом сможет служить гораздо дольше обычного срока эксплуатации. Данная обработка проводится не только изнутри, но и снаружи, не оказывая вреда для здоровья жильцов и их животных.

Заказ строительства двухэтажного дома в рекордные сроки

Проект № ЭД-64 — это лучшее решение для тех, кто мечтал о большом и красивом доме. Натуральные материалы создают благоприятный микроклимат, где летом сохраняется прохлада, а зимой — комфортное тепло. Великолепная эстетика, оригинальная текстура бруса делают постройки стильными, современными и востребованными во все времена.

Для заказа на строительство от компании «Эко Дом Мне» позвоните по контактным телефонам или воспользуйтесь обратной связью.

В комплектацию дома под усадку входит:

Материалы:

  • Наружные стены,бруса 150*150 мм.,145*145 мм.,195*145 мм.,(уточнять);
  • Внутренние стены,брус 100*150 мм.,95*145 мм.,145*145 мм.,(уточнять);
  • Рубленные фронтоны(в зависимости от комплектации,возможно каркасного типа (уточнять);
  • Внутренние перегородки,в зависимости от комплектации,возможно каркасного типа либо из бруса(уточнять);
  • Лаги пола первого этажа брус 100*150 мм.,межэтажные,подстропильные,возможен второй свет в зависимости от комплектации(уточнять);
  • Стропильная конструкция,брус 50*150 мм.;
  • Контробрешётка брус 50*50 мм.;
  • Обрешётка крыши,доска 25*150 мм., 25*100 мм.;
  • Метизные изделия (скобы, гвозди...);
  • Межвенцевой утеплитель,джут (льноватин);
  • Рубероид, временная кровля(уточнять);
  • Материал на изготовление строительных лесов;
  • Гидроизоляция на фундамент, гидроизол;
  • Рабочий проект;
  • Погрузка и разгрузка пиломатериалов на участка Заказчика;

Перечень работ:

  • Монтаж сруба с внутренними стенами(в зависимости от комплектации);
  • Врезка балок пола, межэтажных, подстропильных(в зависимости от комплектации);
  • Прокладка межвенцового утеплителя джута (льноватина);
  • Прошкантовка стен деревянными нагелями;
  • Монтаж стропильной конструкции;
  • Укладка обрешётки;
  • Покрытие крыши временной кровлей рубероид(уточнять);
  • Укладка на фундамент гидроизоляции;
  • Монтаж и демонтаж строительных лесов;
  • Обработка нижних венцов и балок.

Фундамент,кровля и доставка расчитываются индивидуально.

Площадь общая: 146,32м2
Площадь полезная 148,16м2

Похожие проекты

Наши преимущества
Работаем без предоплаты!
Выезд на заключение договора - бесплатно!
Доставка в любую точку центрального региона!
Материал проходит обработку экологически чистым антисептиком для внутренних и наружных работ!
При заказе дома скидка на баню до 10% от стоимости!
Бесплатный выезд для проведения послеусадочных работ!
Отделочные работы нами построенных домов - скидки до 20%!
Строим дома любой сложности!
Бесплатный расчет Вашего проекта!
Делаем согласование проектов домов с БТИ (данная услуга осуществляется отдельно)!
Предлагаем услуги дизайнера по созданию визуального вида вашего будущего дома!
Видео отзывы
Есть вопросы по строительству дома?
Вы можете приложить файл с проектом, схемой объекта. Если файлов несколько, вы можете сжать их архиватором WinZip или WinRar.