Дом из бруса 11 на 12 № ЭД-63 строительство домов из бруса и бревна под ключ цены
Обратная связь

Проект дома из бруса 11х12 № ЭД-63

Цена

Брус простой 150х150 2080210 Купить
Брус профилированный 145х145 2384030 Купить
Брус профилированный 145х195 2722610 Купить
Проект дома из бруса 11х12 № ЭД-63 Проект дома из бруса 11х12 № ЭД-63 Проект дома из бруса 11х12 № ЭД-63 Проект дома из бруса 11х12 № ЭД-63 Проект дома из бруса 11х12 № ЭД-63 Проект дома из бруса 11х12 № ЭД-63

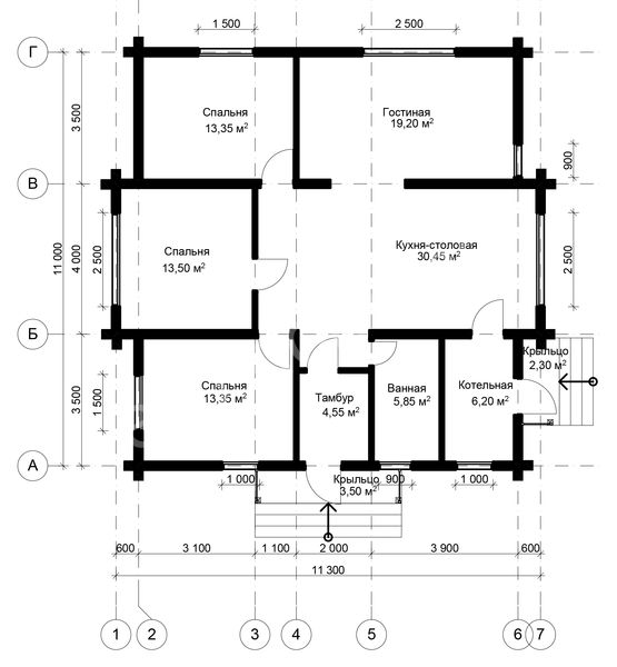
План схема Проект дома из бруса 11х12 № ЭД-63

Высота стен первого этажа 3 метра.

Проект дома из бруса 11х12 № ЭД-63

Компания «Эко Дом Мне» — крупная строительная компания, реализующая возведение домов по готовым проектам по низкой стоимости. Одним из наиболее востребованных и популярных вариантов считается проект № ЭД-63. Это одноэтажная конструкция размером 11х12 метров. Планировка объекта включает в себя следующие помещения:

  • гостиную;
  • три спальни;
  • кухню-столовую;
  • тамбур;
  • ванную комнату и котельную.

Здесь нет ничего лишнего, и при этом присутствуют все необходимые для комфортной жизни зоны. Так, например, все три спальни располагаются по одной стороне дома. Они не перемежены с кухней или ванной. Таким образом, всего на одном этаже удобно размещена зона релакса и другие комнаты.

Проект дома из бруса 11 на 12

Строительство деревянного дома 11 на 12 метров идеально подходит для тех, кто ценит комфорт и любит современную эстетику. Проект № ЭД-63 отлично смотрится, сочетает в себе классические и современные архитектурные черты.

Достоинствами данного предложения являются:

  • демократичная цена;
  • использование исключительно натуральных материалов;
  • оперативные сроки реализации заказов;
  • ведение работ профессиональными строительными бригадами;
  • приятные скидки на дальнейшие работы (отделка, электромонтаж, строительство бань).

В случае заказа у нас дома по готовому проекту, вы можете рассчитывать на хорошую скидку на декоративно-отделочные и ремонтные услуги. В качестве подарка за то, что вы выбрали именно нас, мы подарим вам бытовку. В компании «Эко Дом Мне» можно дополнительно сделать заказ на возведение крепкого и надежного фундамента.

Так как главным врагом деревянной постройки является влага, грибок и плесень, то по окончанию процесса возведения конструкции будет произведена дополнительная антисептическая обработка. Она надежно защитит новый дом от разрушений и воздействия болезнетворных микроорганизмов.

Заказ строительства одноэтажного дома по проекту № ЭД-63

Проект № ЭД-63 пользуется высоким спросом. Опытные бригады строителей помогут создать прекрасный дом для всей семьи при минимальных затратах. Средний срок работ составляет 4 недели. Если вас заинтересовало наше предложение, позвоните в компанию «Эко Дом Мне». Консультанты фирмы ответят на любые ваши вопросы, примут заявку на выезд представителя в ваш город для проведения замеров и заключения договора.

В комплектацию дома под усадку входит:

Материалы:

  • Наружные стены,бруса 150*150 мм.,145*145 мм.,195*145 мм.,(уточнять);
  • Внутренние стены,брус 100*150 мм.,95*145 мм.,145*145 мм.,(уточнять);
  • Рубленные фронтоны(в зависимости от комплектации,возможно каркасного типа (уточнять);
  • Внутренние перегородки,в зависимости от комплектации,возможно каркасного типа либо из бруса(уточнять);
  • Лаги пола первого этажа брус 100*150 мм.,межэтажные,подстропильные,возможен второй свет в зависимости от комплектации(уточнять);
  • Стропильная конструкция,брус 50*150 мм.;
  • Контробрешётка брус 50*50 мм.;
  • Обрешётка крыши,доска 25*150 мм., 25*100 мм.;
  • Метизные изделия (скобы, гвозди...);
  • Межвенцевой утеплитель,джут (льноватин);
  • Рубероид, временная кровля(уточнять);
  • Материал на изготовление строительных лесов;
  • Гидроизоляция на фундамент, гидроизол;
  • Рабочий проект;
  • Погрузка и разгрузка пиломатериалов на участка Заказчика;

Перечень работ:

  • Монтаж сруба с внутренними стенами(в зависимости от комплектации);
  • Врезка балок пола, межэтажных, подстропильных(в зависимости от комплектации);
  • Прокладка межвенцового утеплителя джута (льноватина);
  • Прошкантовка стен деревянными нагелями;
  • Монтаж стропильной конструкции;
  • Укладка обрешётки;
  • Покрытие крыши временной кровлей рубероид(уточнять);
  • Укладка на фундамент гидроизоляции;
  • Монтаж и демонтаж строительных лесов;
  • Обработка нижних венцов и балок.

Фундамент,кровля и доставка расчитываются индивидуально.

Площадь общая: 112,25м2
Площадь полезная 107,70м2

Похожие проекты

Наши преимущества
Работаем без предоплаты!
Выезд на заключение договора - бесплатно!
Доставка в любую точку центрального региона!
Материал проходит обработку экологически чистым антисептиком для внутренних и наружных работ!
При заказе дома скидка на баню до 10% от стоимости!
Бесплатный выезд для проведения послеусадочных работ!
Отделочные работы нами построенных домов - скидки до 20%!
Строим дома любой сложности!
Бесплатный расчет Вашего проекта!
Делаем согласование проектов домов с БТИ (данная услуга осуществляется отдельно)!
Предлагаем услуги дизайнера по созданию визуального вида вашего будущего дома!
Видео отзывы
Есть вопросы по строительству дома?
Вы можете приложить файл с проектом, схемой объекта. Если файлов несколько, вы можете сжать их архиватором WinZip или WinRar.