Элитные дома из бруса 9 на 11 № ЭД-88 строительство домов из бруса и бревна под ключ цены
Обратная связь

Проект элитного дома из бруса 9х11 № ЭД-88

Цена

Брус простой 150х150 2537150 Купить
Брус профилированный 145х145 2852520 Купить
Брус профилированный 145х195 3339600 Купить
Проект элитного дома из бруса 9х11 № ЭД-88 Проект элитного дома из бруса 9х11 № ЭД-88 Проект элитного дома из бруса 9х11 № ЭД-88 Проект элитного дома из бруса 9х11 № ЭД-88 Проект элитного дома из бруса 9х11 № ЭД-88 Проект элитного дома из бруса 9х11 № ЭД-88

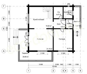
План схема Проект элитного дома из бруса 9х11 № ЭД-88

Высота стен первого этажа 3 метра.

Высота стен второго этажа 1,5 метра.

Высота рубленных фронтонов 3 метра.

Проект элитного дома из бруса 9х11 № ЭД-88 Проект элитного дома из бруса 9х11 № ЭД-88

Дом из бруса 9х11 – образец гармоничной внутренней планировки, когда каждый метр жилого пространства используется целесообразно. На первом этаже дома расположены просторная светлая гостиная с выходом на террасу и уютным камином в углу. Это пространство объединено широкой аркой с кухней-столовой, за счет чего создана общая территория, которая позволяет с комфортом принимать гостей и организовывать семейные торжества.

Проект дома из бруса 9 на 11

На первом этаже, кроме парадных помещений, расположена небольшая гостевая комната, которая может стать приютом для задержавшихся визитеров или удобным кабинетом хозяина дома, если в нем планируется постоянное проживание.

Предусмотрена бойлерная с отдельным входом, которая позволяет комфортно обслуживать печь и другие технические коммуникации в доме. Благодаря входу с улицы, вы можете быть спокойны за чистоту в доме: вся пыль и грязь, которая связана с использованием твердого топлива, останется снаружи, в доме будет тепло и чисто всю зиму.

Теплопотери у входной двери в морозы будут невелики за счет наличия отапливаемого тамбура, который ведет в холл. Жилые и парадные помещения защищены от сквозняков и не выстуживаются через входную дверь.

Расположение спален на мансардном этаже дома задумано архитектором потому, что:

  • в этих помещениях не нужны высокие потолки, а мансардный скос делает их уютными, давая простор фантазии дизайнера для декорирования;
  • теплый воздух прежде всего поднимается наверх, поэтому даже в самые суровые зимние ночи вы не успеете замерзнуть;
  • засидевшиеся допоздна в столовой и гостиной друзья не помешают спать на втором этаже другим членам семьи.

В доме предусмотрены 2 санузла, на первом и втором этаже, поэтому гости и хозяева не будут стеснены в использовании удобств.

Проект одноэтажного дома с мансардой в компании «Эко Дом Мне»

Обратившись в нашу компанию с целью реализации этого проекта, вы получите качественную, теплую и долговечную постройку, надежно защищенную от сквозняков и промерзания. Наши опытные мастера занимаются строительством из бруса больше 10 лет, владеют древними секретами укладки дерева и знают особенности современных технологий. Поэтому мы:

  • возведем дом быстро;
  • предложим достойную цену;
  • гарантируем высокое качество.

Звоните нашему менеджеру и узнайте стоимость проекта под ключ.

В комплектацию дома под усадку входит:

Материалы:

  • Наружные стены,бруса 150*150 мм.,145*145 мм.,195*145 мм.,(уточнять);
  • Внутренние стены,брус 100*150 мм.,95*145 мм.,145*145 мм.,(уточнять);
  • Рубленные фронтоны(в зависимости от комплектации,возможно каркасного типа (уточнять);
  • Внутренние перегородки,в зависимости от комплектации,возможно каркасного типа либо из бруса(уточнять);
  • Лаги пола первого этажа брус 100*150 мм.,межэтажные,подстропильные,возможен второй свет в зависимости от комплектации(уточнять);
  • Стропильная конструкция,брус 50*150 мм.;
  • Контробрешётка брус 50*50 мм.;
  • Обрешётка крыши,доска 25*150 мм., 25*100 мм.;
  • Метизные изделия (скобы, гвозди...);
  • Межвенцевой утеплитель,джут (льноватин);
  • Рубероид, временная кровля(уточнять);
  • Материал на изготовление строительных лесов;
  • Гидроизоляция на фундамент, гидроизол;
  • Рабочий проект;
  • Погрузка и разгрузка пиломатериалов на участка Заказчика;

Перечень работ:

  • Монтаж сруба с внутренними стенами(в зависимости от комплектации);
  • Врезка балок пола, межэтажных, подстропильных(в зависимости от комплектации);
  • Прокладка межвенцового утеплителя джута (льноватина);
  • Прошкантовка стен деревянными нагелями;
  • Монтаж стропильной конструкции;
  • Укладка обрешётки;
  • Покрытие крыши временной кровлей рубероид(уточнять);
  • Укладка на фундамент гидроизоляции;
  • Монтаж и демонтаж строительных лесов;
  • Обработка нижних венцов и балок.

Фундамент,кровля и доставка расчитываются индивидуально.

Площадь общая: 170,58м2
Площадь полезная 171,37м2

Похожие проекты

Наши преимущества
Работаем без предоплаты!
Выезд на заключение договора - бесплатно!
Доставка в любую точку центрального региона!
Материал проходит обработку экологически чистым антисептиком для внутренних и наружных работ!
При заказе дома скидка на баню до 10% от стоимости!
Бесплатный выезд для проведения послеусадочных работ!
Отделочные работы нами построенных домов - скидки до 20%!
Строим дома любой сложности!
Бесплатный расчет Вашего проекта!
Делаем согласование проектов домов с БТИ (данная услуга осуществляется отдельно)!
Предлагаем услуги дизайнера по созданию визуального вида вашего будущего дома!
Видео отзывы
Есть вопросы по строительству дома?
Вы можете приложить файл с проектом, схемой объекта. Если файлов несколько, вы можете сжать их архиватором WinZip или WinRar.