Элитные дома из бруса 6 на 8 № ЭД-83 строительство домов из бруса и бревна под ключ цены
Обратная связь

Проект элитного дома из бруса 6х8 № ЭД-83

Цена

Брус простой 150х150 1127060 Купить
Брус профилированный 145х145 1372910 Купить
Брус профилированный 145х195 1556170 Купить
Проект элитного дома из бруса 6х8 № ЭД-83 Проект элитного дома из бруса 6х8 № ЭД-83 Проект элитного дома из бруса 6х8 № ЭД-83 Проект элитного дома из бруса 6х8 № ЭД-83 Проект элитного дома из бруса 6х8 № ЭД-83 Проект элитного дома из бруса 6х8 № ЭД-83

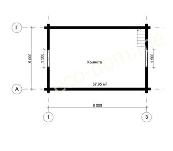
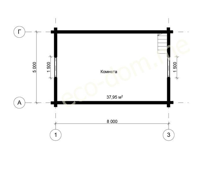
План схема Проект элитного дома из бруса 6х8 № ЭД-83

Высота стен первого этажа 3 метра.

Высота фронтонов 3 метра.

Проект элитного дома из бруса 6х8 № ЭД-83 Проект элитного дома из бруса 6х8 № ЭД-83

Наша компания предлагает своим клиентам широкий выбор домов из высококачественного бруса. В нашем каталоге вы обязательно найдете для себя проект частного коттеджа или дачного дома. При сотрудничестве с нами клиенты получают крепкие и прочные дома из лучших материалов по доступным ценам.

Проект дома из бруса 6 на 8

Данный проект отлично подойдет клиентам, желающим приобрести для себя небольшой, но уютный дом. Несмотря на свои небольшие размеры, здание выглядит довольно презентабельно и привлекательно как снаружи, так и внутри. Такой дом станет настоящим украшением вашей улицы и будет привлекать к себе внимание всех соседей.

Внутреннее устройство жилища представляет собой:

  • Две жилых комнаты 3х6;
  • Тамбур;
  • Коридор с лестницей, ведущей на второй этаж;
  • Комнату на втором этаже размерами 5х8.

При этом комнаты расположены максимально удобно для владельцев. Для каждой комнаты вы сможете найти собственное применение в зависимости от своих потребностей и назначения вашего участка.

Проект двухэтажного дома 

Данное жилище имеет два этажа. Второй этаж представляет собой просторную комнату-чердак под крышей дома. Клиент может использовать это пространство для массы потребностей, сделав из нее жилое помещение или переоборудовав чердак для складирования инвентаря, а может сделать комнату для отдыха с друзьями.

При этом жильем можно пользоваться и в зимнее время. Такую возможность предоставляет льноватин – наиболее удобный и популярный материал для утепления проектов домов из бруса. Он обеспечивает хорошее сохранение тепла и предоставляет комфортные условия жилья даже в самые лютые морозы.

Кроме того, в проект строительства входит гидроизоляция. Это значит, что вся конструкция жилища будет надежно сохранена от воздействия дождя и снега, и дом прослужит вам гораздо дольше.

В нашей компании высокое качество домов 

Наша фирма занимается производством и возведением домов из бруса уже несколько лет, и за это время успела закрепиться на одном из лидирующих мест на отечественном рынке. Мы оказываем свои услуги на территории всей России. За время своей работы мы успели возвести свыше 200 проектов, каждый из которых отличается качеством.

Связаться с нами вы можете следующим образом:

  • Позвонив нам самостоятельно;
  • Заказав услугу «Обратный звонок»;
  • Написав нам на электронную почту.

Позвоните нам прямо сейчас, чтобы узнать стоимость проекта и получить подробную консультацию по всем интересующим вас вопросам.

В комплектацию дома под усадку входит:

Материалы:

  • Наружные стены,бруса 150*150 мм.,145*145 мм.,195*145 мм.,(уточнять);
  • Внутренние стены,брус 100*150 мм.,95*145 мм.,145*145 мм.,(уточнять);
  • Рубленные фронтоны(в зависимости от комплектации,возможно каркасного типа (уточнять);
  • Внутренние перегородки,в зависимости от комплектации,возможно каркасного типа либо из бруса(уточнять);
  • Лаги пола первого этажа брус 100*150 мм.,межэтажные,подстропильные,возможен второй свет в зависимости от комплектации(уточнять);
  • Стропильная конструкция,брус 50*150 мм.;
  • Контробрешётка брус 50*50 мм.;
  • Обрешётка крыши,доска 25*150 мм., 25*100 мм.;
  • Метизные изделия (скобы, гвозди...);
  • Межвенцевой утеплитель,джут (льноватин);
  • Рубероид, временная кровля(уточнять);
  • Материал на изготовление строительных лесов;
  • Гидроизоляция на фундамент, гидроизол;
  • Рабочий проект;
  • Погрузка и разгрузка пиломатериалов на участка Заказчика;

Перечень работ:

  • Монтаж сруба с внутренними стенами(в зависимости от комплектации);
  • Врезка балок пола, межэтажных, подстропильных(в зависимости от комплектации);
  • Прокладка межвенцового утеплителя джута (льноватина);
  • Прошкантовка стен деревянными нагелями;
  • Монтаж стропильной конструкции;
  • Укладка обрешётки;
  • Покрытие крыши временной кровлей рубероид(уточнять);
  • Укладка на фундамент гидроизоляции;
  • Монтаж и демонтаж строительных лесов;
  • Обработка нижних венцов и балок.

Фундамент,кровля и доставка расчитываются индивидуально.

Площадь общая: 84,25м2
Площадь полезная 85,25м2

Похожие проекты

Наши преимущества
Работаем без предоплаты!
Выезд на заключение договора - бесплатно!
Доставка в любую точку центрального региона!
Материал проходит обработку экологически чистым антисептиком для внутренних и наружных работ!
При заказе дома скидка на баню до 10% от стоимости!
Бесплатный выезд для проведения послеусадочных работ!
Отделочные работы нами построенных домов - скидки до 20%!
Строим дома любой сложности!
Бесплатный расчет Вашего проекта!
Делаем согласование проектов домов с БТИ (данная услуга осуществляется отдельно)!
Предлагаем услуги дизайнера по созданию визуального вида вашего будущего дома!
Видео отзывы
Есть вопросы по строительству дома?
Вы можете приложить файл с проектом, схемой объекта. Если файлов несколько, вы можете сжать их архиватором WinZip или WinRar.