Дом из бруса 9 на 8 № ЭД-73 строительство домов из бруса и бревна под ключ цены
Обратная связь

Проект дома из бруса 9х8 № ЭД-73

Цена

Брус простой 150х150 1083060 Купить
Брус профилированный 145х145 1328910 Купить
Брус профилированный 145х195 1500510 Купить
Проект дома № ЭД-73 Проект дома № ЭД-73 Проект дома № ЭД-73 Проект дома № ЭД-73 Проект дома № ЭД-73 Проект дома № ЭД-73

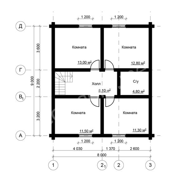
План схема Проект дома № ЭД-73

Высота стен 1-го этажа 3 метра.

Высота рубленых фронтонов 3 метра.

Проект дома № ЭД-73 Проект дома № ЭД-73

«Эко Дом Мне» — популярная и надежная строительная компания, специализирующаяся на возведении частных домов и коттеджей из натуральной древесины. На протяжении многих лет мы успешно осуществляем проекты различной сложности. Все клиенты фирмы остаются полностью довольны как стоимостью услуг, так и качеством выполняемой работы. Обращаясь к нам за помощью, вы получаете:

  • Демократичные цены.
  • Гарантию.
  • Скидки и акции.
  • Команду высококвалифицированных специалистов.

Проект дома из бруса 9 на 8 

До сих пор в поисках оптимального проекта дома? Рассмотрите предложенный нами вариант. Представленный на данной странице дом превосходно подходит как для дачи, так и для постоянного места жительства. В нем есть пять комнат, санузел и вместительная терраса. Существует несколько преимуществ предлагаемого варианта, мотивирующих выбрать именно его:

  • Большое количество просторных комнат.
  • Удобная планировка.
  • Невысокая стоимость.
  • Наличие террасы.

Для возведения данного здания мы применяем исключительно высококачественный лесоматериал. Для основания постройки зачастую используется ленточный фундамент. Он недорогой, быстро закладывается, обеспечивает прочность и долговечность жилья.

Проект одноэтажного дома с мансардой 

Одноэтажный дом с мансардой — отличный вариант для небольшой семьи. Такое здание имеет несколько важных преимуществ. Во-первых — сжатые сроки строительства. Кроме этого, к достоинствам следует отнести экономию. Одноэтажный дом позволит сэкономить не только на оплате коммунальных услуг, но и на отделочных работах (ремонте).

Почему следует обратиться именно к нам 

Наша компания гарантирует выгодные условия сотрудничества. Представитель фирмы бесплатно приедет в назначенное место для осмотра территории, а также для заключения договора. Следует отметить, что деревянный одноэтажный дом можно возводить на грунте любого состава.

Хотите проконсультироваться со специалистом? Позвоните по одному из указанных на нашем сайте номеров. У консультанта также можно получить более подробную информацию о предоставляемых услугах.

В комплектацию дома под усадку входит:

Материалы:

  • Наружные стены,бруса 150*150 мм.,145*145 мм.,195*145 мм.,(уточнять);
  • Внутренние стены,брус 100*150 мм.,95*145 мм.,145*145 мм.,(уточнять);
  • Рубленные фронтоны(в зависимости от комплектации,возможно каркасного типа (уточнять);
  • Внутренние перегородки,в зависимости от комплектации,возможно каркасного типа либо из бруса(уточнять);
  • Лаги пола первого этажа брус 100*150 мм.,межэтажные,подстропильные,возможен второй свет в зависимости от комплектации(уточнять);
  • Стропильная конструкция,брус 50*150 мм.;
  • Контробрешётка брус 50*50 мм.;
  • Обрешётка крыши,доска 25*150 мм., 25*100 мм.;
  • Метизные изделия (скобы, гвозди...);
  • Межвенцевой утеплитель,джут (льноватин);
  • Рубероид, временная кровля(уточнять);
  • Материал на изготовление строительных лесов;
  • Гидроизоляция на фундамент, гидроизол;
  • Рабочий проект;
  • Погрузка и разгрузка пиломатериалов на участка Заказчика;

Перечень работ:

  • Монтаж сруба с внутренними стенами(в зависимости от комплектации);
  • Врезка балок пола, межэтажных, подстропильных(в зависимости от комплектации);
  • Прокладка межвенцового утеплителя джута (льноватина);
  • Прошкантовка стен деревянными нагелями;
  • Монтаж стропильной конструкции;
  • Укладка обрешётки;
  • Покрытие крыши временной кровлей рубероид(уточнять);
  • Укладка на фундамент гидроизоляции;
  • Монтаж и демонтаж строительных лесов;
  • Обработка нижних венцов и балок.

Фундамент,кровля и доставка расчитываются индивидуально.

Площадь общая: 125,59м2
Площадь полезная 128,03м2

Похожие проекты

Наши преимущества
Работаем без предоплаты!
Выезд на заключение договора - бесплатно!
Доставка в любую точку центрального региона!
Материал проходит обработку экологически чистым антисептиком для внутренних и наружных работ!
При заказе дома скидка на баню до 10% от стоимости!
Бесплатный выезд для проведения послеусадочных работ!
Отделочные работы нами построенных домов - скидки до 20%!
Строим дома любой сложности!
Бесплатный расчет Вашего проекта!
Делаем согласование проектов домов с БТИ (данная услуга осуществляется отдельно)!
Предлагаем услуги дизайнера по созданию визуального вида вашего будущего дома!
Видео отзывы
Есть вопросы по строительству дома?
Вы можете приложить файл с проектом, схемой объекта. Если файлов несколько, вы можете сжать их архиватором WinZip или WinRar.