Дом из бревна 10 на 9 № ДиБ-59 строительство домов из бруса и бревна под ключ цены
Обратная связь

Проект дома из бревна 10х9 № ДиБ-59

Цена: 3545000 рублей

Купить
Проект дома из бревна 10х9 № ДиБ-59 Проект дома из бревна 10х9 № ДиБ-59 Проект дома из бревна 10х9 № ДиБ-59 Проект дома из бревна 10х9 № ДиБ-59 Проект дома из бревна 10х9 № ДиБ-59 Проект дома из бревна 10х9 № ДиБ-59

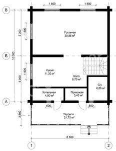
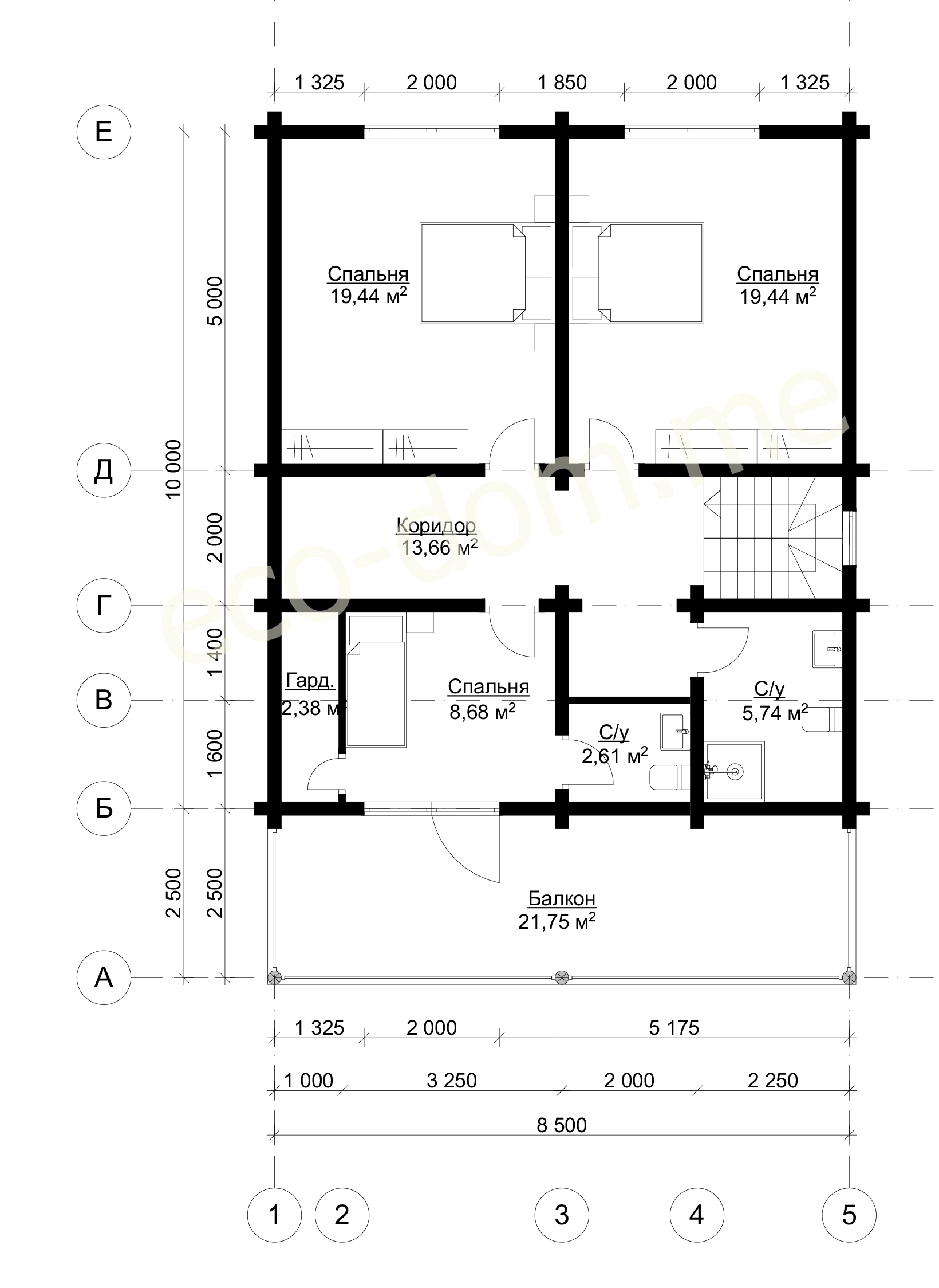
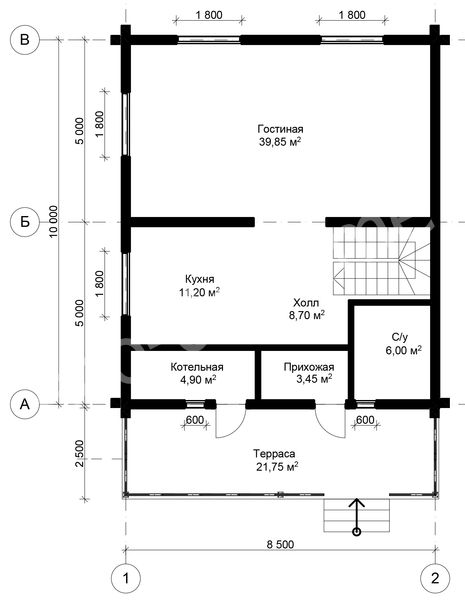
План схема Проект дома из бревна 10х9 № ДиБ-59

Высота стен первого этажа: 3 метра.

Высота наружных стен второго этажа: 1,5 метра.

Высота рубленных фронтонов: 3,4 метра.

Проект дома из бревна 10х9 № ДиБ-59 Проект дома из бревна 10х9 № ДиБ-59

В состав стоимости входит:
Материалы:

  • Наружные стены, бревно диаметр от 18, 20, 22, 24, 26,28 (уточнять);
  • Внутренние стены, бревно диаметр от 18, 20, 22, 24, 26,28 (уточнять);
  • Рубленные фронтоны(в зависимости от комплектации,возможно каркасного типа (уточнять);
  • Внутренние перегородки,в зависимости от комплектации,возможно каркасного типа либо из бруса(уточнять);
  • Лаги пола первого этажа брус 100*150 мм.,межэтажные,подстропильные,возможен второй свет в зависимости от комплектации(уточнять);
  • Стропильная конструкция,брус 50*150 мм.;
  • Контробрешётка брус 50*50 мм.;
  • Обрешётка крыши,доска 25*150 мм., 25*100 мм.;
  • Метизные изделия (скобы, гвозди...);
  • Межвенцевой утеплитель,джут (льноватин);
  • Рубероид, временная кровля(уточнять);
  • Материал на изготовление строительных лесов;
  • Гидроизоляция на фундамент, гидроизол;
  • Рабочий проект;
  • Погрузка и разгрузка пиломатериалов на участка Заказчика;

Перечень работ:

  1. Монтаж сруба с внутренними стенами(в зависимости от комплектации);
  2. Врезка балок пола, межэтажных, подстропильных(в зависимости от комплектации);
  3. Прокладка межвенцового утеплителя джута (льноватина);
  4. Прошкантовка стен деревянными нагелями;
  5. Монтаж стропильной конструкции;
  6. Укладка обрешётки;
  7. Покрытие крыши временной кровлей рубероид(уточнять);
  8. Укладка на фундамент гидроизоляции;
  9. Монтаж и демонтаж строительных лесов;
  10. Обработка нижних венцов и балок.

Фундамент, кровля и доставка рассчитываются индивидуально.

Площадь общая: 195,96м2
Площадь полезная 191,72м2

Похожие проекты

Наши преимущества
Работаем без предоплаты!
Выезд на заключение договора - бесплатно!
Доставка в любую точку центрального региона!
Материал проходит обработку экологически чистым антисептиком для внутренних и наружных работ!
При заказе дома скидка на баню до 10% от стоимости!
Бесплатный выезд для проведения послеусадочных работ!
Отделочные работы нами построенных домов - скидки до 20%!
Строим дома любой сложности!
Бесплатный расчет Вашего проекта!
Делаем согласование проектов домов с БТИ (данная услуга осуществляется отдельно)!
Предлагаем услуги дизайнера по созданию визуального вида вашего будущего дома!
Видео отзывы
Есть вопросы по строительству дома?
Вы можете приложить файл с проектом, схемой объекта. Если файлов несколько, вы можете сжать их архиватором WinZip или WinRar.