Дом из бруса 15 на 10 № ЭД-56 строительство домов из бруса и бревна под ключ цены
Обратная связь

Проект дома из бруса 15х10 № ЭД-56

Цена

Брус простой 150х150 3003330 Купить
Брус профилированный 145х145 3453230 Купить
Брус профилированный 145х195 4051520 Купить
Проект дома из бруса 15х10 № ЭД-56 Проект дома из бруса 15х10 № ЭД-56 Проект дома из бруса 15х10 № ЭД-56 Проект дома из бруса 15х10 № ЭД-56 Проект дома из бруса 15х10 № ЭД-56 Проект дома из бруса 15х10 № ЭД-56

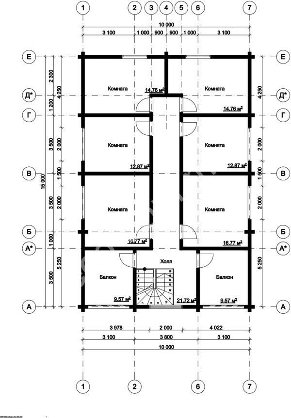
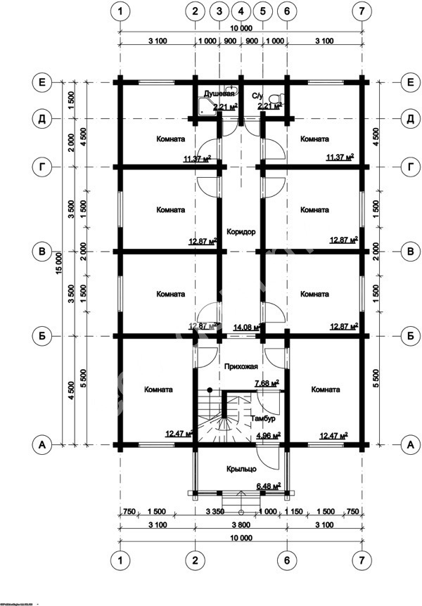
План схема Проект дома из бруса 15х10 № ЭД-56

Высотна первого этажа: 3м.

Высота стен второго этажа: 1.5м.

Высота рубленных фронтонов: 3м.

Проект дома из бруса 15х10 № ЭД-56 Проект дома из бруса 15х10 № ЭД-56

Если вы хотите удобный, практичный и экологичный дом, закажите строительство по проекту № ЭД-56. Такое двухэтажное здание – отличное решение для жизни и отдыха. Компания «Эко Дом Мне» быстро и качественно проведет все необходимые работы по:

  • возведению;
  • внешней и внутренней отделке;
  • оформлению документов и согласованию с БТИ.

Проект дома из бруса 15 на 10

Дом 15 на 10 – просторное двухэтажное здание, в котором предусмотрено все до мелочей. На первом этаже находятся: прихожая, восемь комнат, длинный коридор, санузел и душевая. На втором – шесть комнат, холл и два балкона.

Высота стен первого этажа – 3 метра, второго – 1,5 метра. Большое количество помещений позволяет организовать достаточно спален, комнату отдыха, кабинет, библиотеку, тренажерный зал. Проект № ЭД-56 – неограниченный простор для ваших идей по доступной стоимости. Несмотря на невысокую цену, здание имеет роскошный фасад, который выглядит дорого и привлекательно.

Проект двухэтажного дома – закажите постройку своей мечты

Как и все здания из бруса, постройка имеет ряд преимуществ, которые обеспечивают его практичность и удобство, а именно:

  • экологичность;
  • отличное сохранение тепла;
  • отсутствие необходимости проводить сложные отделочные работы.

Компания «Эко Дом Мне» предлагает два вида бруса для строительства: простой и профилированный. Если у вас есть вопросы или вы хотите получить консультацию специалиста, звоните нам. Поможем подобрать лучшее решение, основываясь на всех ваших требованиях и пожеланиях.

В команде компании работают только проверенные и опытные мастера, которые выполняют работы любой сложности. Помимо жилых домов, занимаемся строительством беседок, бань. Обрабатываем материалы специальными экологичными средствами, которые продлевают их срок службы. Делаем все, чтобы вы остались довольны результатом.

Всегда соблюдаем оговоренные сроки. Не пользуемся услугами сторонних подрядчиков, поэтому уверены в безупречном качестве и подтверждаем это тем, что даем гарантию на все до единой услуги, всегда соблюдаем обязательства.

Закажите строительство здания из бруса по доступной цене. Звоните по контактному номеру телефона, который указан на сайте. Или закажите обратный звонок нашего менеджера и задайте все вопросы, которые вас интересуют.

В комплектацию дома под усадку входит:

Материалы:

  • Наружные стены,бруса 150*150 мм.,145*145 мм.,195*145 мм.,(уточнять);
  • Внутренние стены,брус 100*150 мм.,95*145 мм.,145*145 мм.,(уточнять);
  • Рубленные фронтоны(в зависимости от комплектации,возможно каркасного типа (уточнять);
  • Внутренние перегородки,в зависимости от комплектации,возможно каркасного типа либо из бруса(уточнять);
  • Лаги пола первого этажа брус 100*150 мм.,межэтажные,подстропильные,возможен второй свет в зависимости от комплектации(уточнять);
  • Стропильная конструкция,брус 50*150 мм.;
  • Контробрешётка брус 50*50 мм.;
  • Обрешётка крыши,доска 25*150 мм., 25*100 мм.;
  • Метизные изделия (скобы, гвозди...);
  • Межвенцевой утеплитель,джут (льноватин);
  • Рубероид, временная кровля(уточнять);
  • Материал на изготовление строительных лесов;
  • Гидроизоляция на фундамент, гидроизол;
  • Рабочий проект;
  • Погрузка и разгрузка пиломатериалов на участка Заказчика;

Перечень работ:

  • Монтаж сруба с внутренними стенами(в зависимости от комплектации);
  • Врезка балок пола, межэтажных, подстропильных(в зависимости от комплектации);
  • Прокладка межвенцового утеплителя джута (льноватина);
  • Прошкантовка стен деревянными нагелями;
  • Монтаж стропильной конструкции;
  • Укладка обрешётки;
  • Покрытие крыши временной кровлей рубероид(уточнять);
  • Укладка на фундамент гидроизоляции;
  • Монтаж и демонтаж строительных лесов;
  • Обработка нижних венцов и балок.

Фундамент,кровля и доставка расчитываются индивидуально.

Площадь общая: 252,72м2
Площадь полезная 256,75м2

Похожие проекты

Наши преимущества
Работаем без предоплаты!
Выезд на заключение договора - бесплатно!
Доставка в любую точку центрального региона!
Материал проходит обработку экологически чистым антисептиком для внутренних и наружных работ!
При заказе дома скидка на баню до 10% от стоимости!
Бесплатный выезд для проведения послеусадочных работ!
Отделочные работы нами построенных домов - скидки до 20%!
Строим дома любой сложности!
Бесплатный расчет Вашего проекта!
Делаем согласование проектов домов с БТИ (данная услуга осуществляется отдельно)!
Предлагаем услуги дизайнера по созданию визуального вида вашего будущего дома!
Видео отзывы
Есть вопросы по строительству дома?
Вы можете приложить файл с проектом, схемой объекта. Если файлов несколько, вы можете сжать их архиватором WinZip или WinRar.