

|
Брус простой 150х150:
|
Брус профилированный 145х145:
|
Брус профилированный 145х195:
|
|
1 025 000 рублей.
|
1 183 000 рублей.
|
1 358 000 рублей.
|
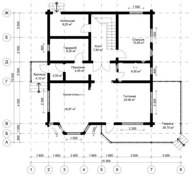
Высота стен первого этажа 3 метра.
Высота стен второго этажа 1,5 метра.
Высота рубленных фронтонов 2 метра.






В состав стоимости входит:
Материалы:
-
Брус 150х150 мм на наружные несущие стены;
-
Брус 150х150 мм на наружные фронтоны;
-
Брус 100х150 мм на внутренние перегородки;
-
Брус 100х150 мм на балки перекрытий ( половые, межэтажные, подстропильные );
-
Доска 50х150 мм на стропильную конструкцию;
-
Доска 25х100 мм, 25х150 мм на обрешётку;
-
Доска 25х100 мм, 25х150 мм на черновой пол;
-
Брусок 50х50;
-
Метизные изделия ( скобы, гвозди, саморезы );
-
Межвенцовый утеплитель - льноватин;
-
Рубероид на временную кровлю крыши;
-
Материал на изготовление строительных лесов;
-
Гидроизоляция на фундамент - гидроизол;
-
Деревянные нагеля;
-
Рабочий проект;
-
Перечень работ:
-
Монтаж сруба с внутренними перегородками;
-
Врезка балок половых, межэтажных, подстропильных;
-
Прокладка межвенцового утеплителя льноватина;
-
Подвивка льноватина;
-
Прошкантовка стен деревянными нагелями;
-
Монтаж стропильной конструкции;
-
Укладка обрешётки;
-
Укладка черновых полов;
-
Кровля временной кровлей-рубероидом;
-
Укладка на фундамент гидроизоляции;
-
Монтаж и демонтаж строительных лесов.
- Обработка нижних венцов и балок в подарок
Если Вам понравился проект дома из бруса, Вы можете заказать его строительство или строительство сруба двухэтажного прямо сейчас оформив заявку позвонив нашим менеджерам.