Дом из бруса 12 на 13 № ЭД-32 строительство домов из бруса и бревна под ключ цены
Обратная связь

Проект дома из бруса 12х13 № ЭД-32

Цена

Брус простой 150х150 2493040 Купить
Брус профилированный 145х145 2864180 Купить
Брус профилированный 145х195 3049640 Купить
Проект дома из бруса 12х13 № ЭД-32 Проект дома из бруса 12х13 № ЭД-32 Проект дома из бруса 12х13 № ЭД-32 Проект дома из бруса 12х13 № ЭД-32 Проект дома из бруса 12х13 № ЭД-32 Проект дома из бруса 12х13 № ЭД-32

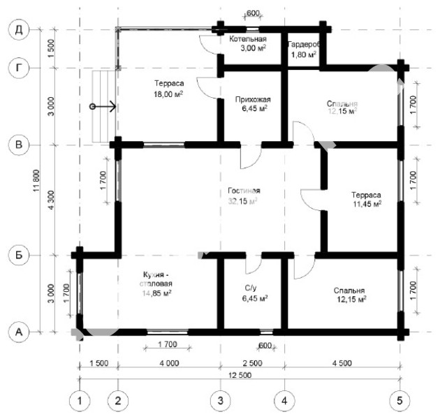
План схема Проект дома из бруса 12х13 № ЭД-32

Высота наружных стен первого этажа 2,6 метра.

Высота рубленных фронтонов 2,5 метра.

Проект дома из бруса 12х13 № ЭД-32

Компания «Эко Дом Мне» ведет строительство домов из бруса по готовым проектам. Одним из популярных вариантов является проект одноэтажной постройки размером 12х13 № ЭД-32. Он отличается:

  • низкой ценой;
  • удобной планировкой;
  • экологичностью;
  • высотой стен первого этажа в 3 метра;
  • высотой рубленных фронтонов в 3 метра.

В новом жилище вас будут ожидать просторная гостиная, кухня-столовая, две спальни, котельная, гардеробная, прихожая, две зоны террасы. Спальни расположены в противоположных частях дома, благодаря чему обеспечивается хорошая звукоизоляция и максимальный комфорт во время отдыха.

В стоимость строительства входит сам проект, основные и расходные материалы, а также работы по возведению конструкции, монтажу кровли и чернового пола. Так как в качестве используемого материала применяется простой или профилированный брус, то необходимость в декоративной отделке изнутри и снаружи отпадает.

Современный проект дома из бруса 12 на 13

Современный деревянный дом во все времена выглядит стильно, красиво и престижно. Специалисты нашей компании помогут возвести прекрасный вариант жилья, в котором может разместиться семейная пара или семья с детьми.

Преимуществами компании «Эко Дом Мне» являются:

  • разумные цены;
  • возможность внесения изменений в готовый проект в отношении высоты, длины и ширины конструкции;
  • квалифицированные бригады строителей в нескольких поколениях;
  • быстрые сроки сборки коробки;
  • предоставление скидки в размере 20% на отделочные работы при заказе дома по фирменному проекту;
  • бесплатные консультации;
  • возможность проведения строительства в любом регионе страны.

Проект одноэтажного дома № ЭД-32

Вы можете посмотреть проект № ЭД-32, его фото и схему планировки. Если вас заинтересовал данный вариант объекта недвижимости из бруса, обратитесь к сотрудникам компании «Эко Дом Мне». Они расскажут обо всех преимуществах данного объекта, порекомендуют возможные аналоги с учетом ваших индивидуальных предпочтений.

Для заказа строительных работ позвоните по контактным номерам телефонов, которые видите сейчас на сайте, или воспользуйтесь бесплатной услугой «Обратный звонок» через сайт. Для этого просто заполните короткую форму электронной заявки и отправьте ее нам. Мы свяжемся с вами и обсудим все важные вопросы.

В комплектацию дома под усадку входит:

Материалы:

  • Наружные стены,бруса 150*150 мм.,145*145 мм.,195*145 мм.,(уточнять);
  • Внутренние стены,брус 100*150 мм.,95*145 мм.,145*145 мм.,(уточнять);
  • Рубленные фронтоны(в зависимости от комплектации,возможно каркасного типа (уточнять);
  • Внутренние перегородки,в зависимости от комплектации,возможно каркасного типа либо из бруса(уточнять);
  • Лаги пола первого этажа брус 100*150 мм.,межэтажные,подстропильные,возможен второй свет в зависимости от комплектации(уточнять);
  • Стропильная конструкция,брус 50*150 мм.;
  • Контробрешётка брус 50*50 мм.;
  • Обрешётка крыши,доска 25*150 мм., 25*100 мм.;
  • Метизные изделия (скобы, гвозди...);
  • Межвенцевой утеплитель,джут (льноватин);
  • Рубероид, временная кровля(уточнять);
  • Материал на изготовление строительных лесов;
  • Гидроизоляция на фундамент, гидроизол;
  • Рабочий проект;
  • Погрузка и разгрузка пиломатериалов на участка Заказчика;

Перечень работ:

  • Монтаж сруба с внутренними стенами(в зависимости от комплектации);
  • Врезка балок пола, межэтажных, подстропильных(в зависимости от комплектации);
  • Прокладка межвенцового утеплителя джута (льноватина);
  • Прошкантовка стен деревянными нагелями;
  • Монтаж стропильной конструкции;
  • Укладка обрешётки;
  • Покрытие крыши временной кровлей рубероид(уточнять);
  • Укладка на фундамент гидроизоляции;
  • Монтаж и демонтаж строительных лесов;
  • Обработка нижних венцов и балок.

Фундамент,кровля и доставка расчитываются индивидуально.

Площадь общая: 118,45м2
Площадь полезная 118,45м2

Похожие проекты

Наши преимущества
Работаем без предоплаты!
Выезд на заключение договора - бесплатно!
Доставка в любую точку центрального региона!
Материал проходит обработку экологически чистым антисептиком для внутренних и наружных работ!
При заказе дома скидка на баню до 10% от стоимости!
Бесплатный выезд для проведения послеусадочных работ!
Отделочные работы нами построенных домов - скидки до 20%!
Строим дома любой сложности!
Бесплатный расчет Вашего проекта!
Делаем согласование проектов домов с БТИ (данная услуга осуществляется отдельно)!
Предлагаем услуги дизайнера по созданию визуального вида вашего будущего дома!
Видео отзывы
Есть вопросы по строительству дома?
Вы можете приложить файл с проектом, схемой объекта. Если файлов несколько, вы можете сжать их архиватором WinZip или WinRar.