Дом из бруса 8 на 9 № ЭД-80 строительство домов из бруса и бревна под ключ цены
Обратная связь

Проект дома из бруса 8х9 № ЭД-80

Цена

Брус простой 150х150 1361360 Купить
Брус профилированный 145х145 1618760 Купить
Брус профилированный 145х195 1917960 Купить
Проект дома № ЭД-80 Проект дома № ЭД-80 Проект дома № ЭД-80 Проект дома № ЭД-80 Проект дома № ЭД-80 Проект дома № ЭД-80

План схема Проект дома № ЭД-80

Высота стен первого этажа 3 метра.

Высота фронтонов 4 метра.

Проект дома № ЭД-80

Стройфирма «Эко Дом Мне» разрабатывает и реализует проекты деревянных домов по всей России с 2008 года. Наша команда состоит из профессиональных проектировщиков, инженеров и строителей, которым под силу решить любую, даже самую сложную задачу. Заказав наши услуги, вы по выгодной цене получите резиденцию, о которой можно только мечтать.

Особенности проекта дома из бруса 8 на 9

На этой странице представлен объект, который, в определенном смысле, можно считать уникальным. Планировка дома существенно отличается от большинства других проектов, разработанных специалистами компании «Эко Дом Мне».

Планировка 1-го этажа:

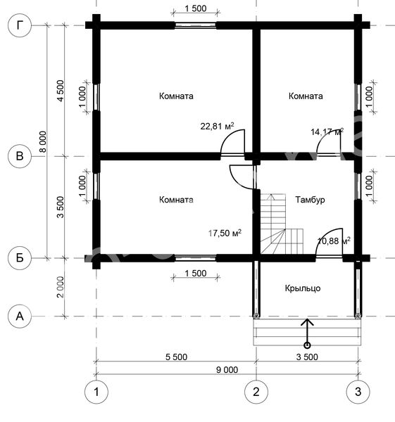
  • Через крыльцо вы попадаете в тамбур, откуда сразу же можно пройти на 2-й этаж по лестнице.
  • Тамбур соседствует с 2-мя комнатами площадью в 14,17 и 17,50 м кв. соответственно.
  • Из 2-й комнаты есть дверь, ведущая в еще одно помещение, площадь которого составляет 22, 81 м кв.

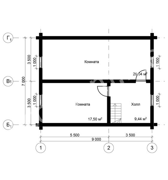
Планировка 2-го этажа:

  • Поднявшись из тамбура по лестнице, вы попадете в холл.
  • Слева от него находится комната площадью в 17,5 м кв.
  • По прямой – еще одна комната, самая большая. Ее площадь составляет более 29 м кв.

Такая планировка позволяет реализовать практически любые дизайнерские фантазии. Вы можете сами выбрать, где будет находиться гостиная, спальни и кухня. А если захотите увеличить количество комнат, то всегда можно установить гипсокартонные перегородки.

Почему для проекта 2-этажного дома стоит выбрать брус?

Мы предлагаем выбрать для строительства вашего дома брус по таким причинам:

  • Высокая точность форм бруса дает возможность исключить необходимость любых доработок после монтажа.
  • Плотная стыковка позволяет избежать зазоров, тем самым обеспечив максимальную защиту от ветровых нагрузок и атмосферных осадков.
  • На то, чтобы возвести здание, требуется всего несколько недель.
  • Нет нужды закладывать тяжелый фундамент (вполне достаточно ленточного).
  • Стоимость пиломатериалов совсем невысокая.

Как заказать услуги компании «Эко Дом Мне»?

Клиенты, сотрудничающие с нашей компанией, получают гарантию на качество реализуемых проектов. Мы можем гарантировать, что ваш дом будет не только надежным, но и очень красивым.

Если вы хотите обсудить условия сотрудничества, свяжитесь с менеджером в телефонном режиме или же оставьте заявку на сайте, после чего мы вам перезвоним.

В комплектацию дома под усадку входит:

Материалы:

  • Наружные стены,бруса 150*150 мм.,145*145 мм.,195*145 мм.,(уточнять);
  • Внутренние стены,брус 100*150 мм.,95*145 мм.,145*145 мм.,(уточнять);
  • Рубленные фронтоны(в зависимости от комплектации,возможно каркасного типа (уточнять);
  • Внутренние перегородки,в зависимости от комплектации,возможно каркасного типа либо из бруса(уточнять);
  • Лаги пола первого этажа брус 100*150 мм.,межэтажные,подстропильные,возможен второй свет в зависимости от комплектации(уточнять);
  • Стропильная конструкция,брус 50*150 мм.;
  • Контробрешётка брус 50*50 мм.;
  • Обрешётка крыши,доска 25*150 мм., 25*100 мм.;
  • Метизные изделия (скобы, гвозди...);
  • Межвенцевой утеплитель,джут (льноватин);
  • Рубероид, временная кровля(уточнять);
  • Материал на изготовление строительных лесов;
  • Гидроизоляция на фундамент, гидроизол;
  • Рабочий проект;
  • Погрузка и разгрузка пиломатериалов на участка Заказчика;

Перечень работ:

  • Монтаж сруба с внутренними стенами(в зависимости от комплектации);
  • Врезка балок пола, межэтажных, подстропильных(в зависимости от комплектации);
  • Прокладка межвенцового утеплителя джута (льноватина);
  • Прошкантовка стен деревянными нагелями;
  • Монтаж стропильной конструкции;
  • Укладка обрешётки;
  • Покрытие крыши временной кровлей рубероид(уточнять);
  • Укладка на фундамент гидроизоляции;
  • Монтаж и демонтаж строительных лесов;
  • Обработка нижних венцов и балок.

Фундамент,кровля и доставка расчитываются индивидуально.

Площадь общая: 134,52м2
Площадь полезная 124,48м2

Похожие проекты

Наши преимущества
Работаем без предоплаты!
Выезд на заключение договора - бесплатно!
Доставка в любую точку центрального региона!
Материал проходит обработку экологически чистым антисептиком для внутренних и наружных работ!
При заказе дома скидка на баню до 10% от стоимости!
Бесплатный выезд для проведения послеусадочных работ!
Отделочные работы нами построенных домов - скидки до 20%!
Строим дома любой сложности!
Бесплатный расчет Вашего проекта!
Делаем согласование проектов домов с БТИ (данная услуга осуществляется отдельно)!
Предлагаем услуги дизайнера по созданию визуального вида вашего будущего дома!
Видео отзывы
Есть вопросы по строительству дома?
Вы можете приложить файл с проектом, схемой объекта. Если файлов несколько, вы можете сжать их архиватором WinZip или WinRar.