Дом из бруса 10 на 8 № ЭД-71 строительство домов из бруса и бревна под ключ цены
Обратная связь

Проект дома из бруса 10х8 № ЭД-71

Цена

Брус простой 150х150 1352010 Купить
Брус профилированный 145х145 1609520 Купить
Брус профилированный 145х195 1852950 Купить
Проект дома № ЭД-71 Проект дома № ЭД-71 Проект дома № ЭД-71 Проект дома № ЭД-71 Проект дома № ЭД-71 Проект дома № ЭД-71

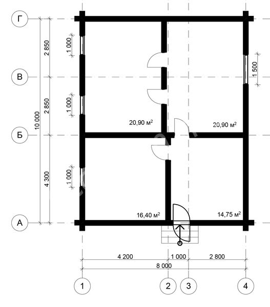
План схема Проект дома № ЭД-71

Высота стен первого этажа 3 метра.

Высота фронтонов 3 метра.

Проект дома № ЭД-71

Решили заказать возведение деревянного дома, но не можете найти надежную компанию? «Эко Дом Мне» — вот куда разумнее обратиться для этой цели. Фирма предлагает исключительно выгодные условия строительства. Здесь вы получите лояльные цены, услуги команды профессиональных строителей, быстрое возведение здания. Можете не сомневаться, что останетесь довольны предоставленными услугами. Наша компания дорожит своими клиентами, поэтому мы сделаем все необходимое, чтобы работа была выполнена максимально качественно и быстро.

Проект дома из бруса 10 на 8

Хотите воспользоваться нашими услугами, но до сих пор не определились с проектом? Мы рекомендуем рассмотреть данный вариант. Представленный на странице дом имеет ряд весомых преимуществ:

  • Привлекательную стоимость.
  • Современный дизайн.
  • Удобную планировку.

В доме есть четыре довольно больших помещения, в которых можно создать любые комнаты. Этот вариант превосходно подойдет в качестве дачи. Несмотря на демократичную цену, это здание будет радовать вас многие десятилетия.

Проект одноэтажного дома 

Многие люди стремятся построить большие двухэтажные коттеджи. Однако одноэтажные постройки имеют множество достоинств:

  • Простоту выполнения косметического, а также наружного ремонта.
  • Отсутствие лестницы, которая может представлять опасность для маленьких детей и пожилых людей.
  • Сравнительно низкую стоимость.
  • Простоту технологии возведения.
  • Сжатые сроки строительства.
  • Отсутствие нужды закладки дорогостоящего фундамента.
  • Возможность возведения здания на грунте любого состава.
  • Экономию на оплате коммунальных услуг.

Поверьте, заказав возведение такого дома, вы гарантировано останетесь довольны, ведь это превосходный вариант для семейного отдыха.

Почему следует обратиться к нам 

«Эко Дом Мне» заслуженно считается одной из популярнейших строительных компаний в центральном регионе страны. Благодаря тому, что мы предельно ответственно и добросовестно относимся к выполнению своих обязанностей, к нам обращается большое количество людей. За годы функционирования фирма успешно осуществила множество проектов.

Оставьте заявку на обратный звонок или позвоните по одному из номеров, указанных на сайте. У нашего сотрудника можно проконсультироваться и оформить заказ.

В комплектацию дома под усадку входит:

Материалы:

  • Наружные стены,бруса 150*150 мм.,145*145 мм.,195*145 мм.,(уточнять);
  • Внутренние стены,брус 100*150 мм.,95*145 мм.,145*145 мм.,(уточнять);
  • Рубленные фронтоны(в зависимости от комплектации,возможно каркасного типа (уточнять);
  • Внутренние перегородки,в зависимости от комплектации,возможно каркасного типа либо из бруса(уточнять);
  • Лаги пола первого этажа брус 100*150 мм.,межэтажные,подстропильные,возможен второй свет в зависимости от комплектации(уточнять);
  • Стропильная конструкция,брус 50*150 мм.;
  • Контробрешётка брус 50*50 мм.;
  • Обрешётка крыши,доска 25*150 мм., 25*100 мм.;
  • Метизные изделия (скобы, гвозди...);
  • Межвенцевой утеплитель,джут (льноватин);
  • Рубероид, временная кровля(уточнять);
  • Материал на изготовление строительных лесов;
  • Гидроизоляция на фундамент, гидроизол;
  • Рабочий проект;
  • Погрузка и разгрузка пиломатериалов на участка Заказчика;

Перечень работ:

  • Монтаж сруба с внутренними стенами(в зависимости от комплектации);
  • Врезка балок пола, межэтажных, подстропильных(в зависимости от комплектации);
  • Прокладка межвенцового утеплителя джута (льноватина);
  • Прошкантовка стен деревянными нагелями;
  • Монтаж стропильной конструкции;
  • Укладка обрешётки;
  • Покрытие крыши временной кровлей рубероид(уточнять);
  • Укладка на фундамент гидроизоляции;
  • Монтаж и демонтаж строительных лесов;
  • Обработка нижних венцов и балок.

Фундамент,кровля и доставка расчитываются индивидуально.

Площадь общая: 72,95м2
Площадь полезная 72,95м2

Похожие проекты

Наши преимущества
Работаем без предоплаты!
Выезд на заключение договора - бесплатно!
Доставка в любую точку центрального региона!
Материал проходит обработку экологически чистым антисептиком для внутренних и наружных работ!
При заказе дома скидка на баню до 10% от стоимости!
Бесплатный выезд для проведения послеусадочных работ!
Отделочные работы нами построенных домов - скидки до 20%!
Строим дома любой сложности!
Бесплатный расчет Вашего проекта!
Делаем согласование проектов домов с БТИ (данная услуга осуществляется отдельно)!
Предлагаем услуги дизайнера по созданию визуального вида вашего будущего дома!
Видео отзывы
Есть вопросы по строительству дома?
Вы можете приложить файл с проектом, схемой объекта. Если файлов несколько, вы можете сжать их архиватором WinZip или WinRar.