Дом из бруса 10 на 9 № ЭД-69 строительство домов из бруса и бревна под ключ цены
Обратная связь

Проект дома из бруса 10х9 № ЭД-69

Цена

Брус простой 150х150 1869230 Купить
Брус профилированный 145х145 1897060 Купить
Брус профилированный 145х195 2149840 Купить
Проект дома № ЭД-69 Проект дома № ЭД-69 Проект дома № ЭД-69 Проект дома № ЭД-69 Проект дома № ЭД-69 Проект дома № ЭД-69

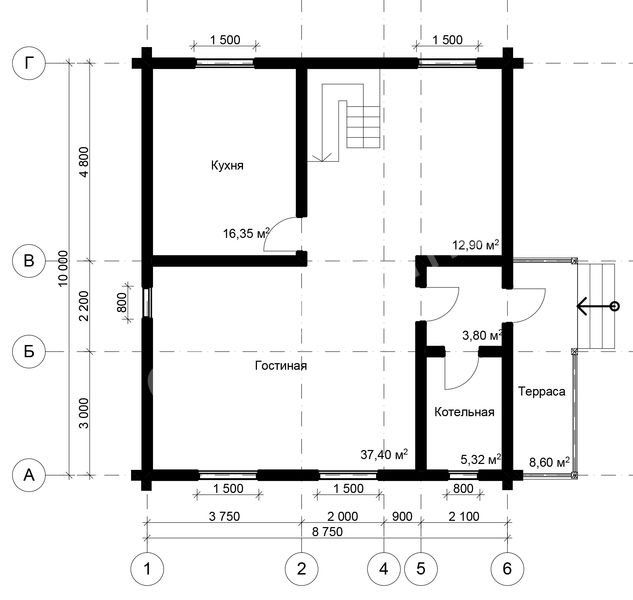
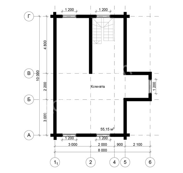
План схема Проект дома № ЭД-69

Высота первого этажа 3,5 метра.

Высота фронтонов 4,5 метра.

Проект дома № ЭД-69 Проект дома № ЭД-69

Хотите заказать строительство частного дома из экологически чистых материалов? У вас ограниченный бюджет? Не переживайте. Чтобы стать обладателем отличного загородного дома, достаточно воспользоваться услугами компании «Эко Дом Мне».

Фирма на протяжении многих лет занимается возведением построек из натуральной древесины. Для изготовления бруса мы используем деревья костромского леса. Следует отметить, что весь лесоматериал заготавливается нами самостоятельно. Благодаря этому компания гарантирует высокое качество используемого бруса.

Проект дома из бруса 10 на 9 

У вас небольшая семья? Ищите небольшой, но очень уютный дом? Воспользуйтесь услугами нашей компании. Мы рекомендуем рассмотреть проект дома из бруса 10 на 9 под номером ЭД-69. Предложенный нашей фирмой вариант имеет несколько важных достоинств:

  • Демократичную стоимость.
  • Современную планировку.
  • Стильный внешний вид.
  • Продуманный дизайн.

В данном доме есть просторная кухня, вместительная гостиная, очень большая спальня, а также терраса — все для комфортной жизни.

Преимуществом такого коттеджа также является возможность возведения дополнительных построек — бани, гаража.

Преимущества оформления заказа в нашей компании 

До сих пор не нашли добросовестную строительную фирму? «Эко Дом Мне» — надежный помощник в возведении жилья. Компания пользуется большим спросом во многих городах страны. Это обусловлено рядом наших преимуществ:

  • Оптимальными ценами.
  • Большим выбором уникальных проектов.
  • Обработкой лесоматериалов безопасными, но эффективными веществами.
  • Наличием собственной лесопилки и пилорамы.
  • Несколькими командами профессиональных строителей.
  • Оперативным выполнением работы.
  • Строгим соблюдением оговоренных сроков выполнения заказа.

Обращаясь к нам, клиент также получает гарантию на дом. Помимо этого, мы предлагаем различные скидки и акции. Так, при оформлении заказа на возведение дома, вы получаете скидку на отделочные работы и строительство бани.

Проект одноэтажного дома с мансардой 

Хотите проконсультироваться со специалистом перед оформлением заказа? Чтобы сделать это, свяжитесь с представителем нашей фирмы по указанному на сайте номеру. С сотрудником компании также можно оговорить условия строительства предложенного одноэтажного дома с мансардой.

В комплектацию дома под усадку входит:

Материалы:

  • Наружные стены,бруса 150*150 мм.,145*145 мм.,195*145 мм.,(уточнять);
  • Внутренние стены,брус 100*150 мм.,95*145 мм.,145*145 мм.,(уточнять);
  • Рубленные фронтоны(в зависимости от комплектации,возможно каркасного типа (уточнять);
  • Внутренние перегородки,в зависимости от комплектации,возможно каркасного типа либо из бруса(уточнять);
  • Лаги пола первого этажа брус 100*150 мм.,межэтажные,подстропильные,возможен второй свет в зависимости от комплектации(уточнять);
  • Стропильная конструкция,брус 50*150 мм.;
  • Контробрешётка брус 50*50 мм.;
  • Обрешётка крыши,доска 25*150 мм., 25*100 мм.;
  • Метизные изделия (скобы, гвозди...);
  • Межвенцевой утеплитель,джут (льноватин);
  • Рубероид, временная кровля(уточнять);
  • Материал на изготовление строительных лесов;
  • Гидроизоляция на фундамент, гидроизол;
  • Рабочий проект;
  • Погрузка и разгрузка пиломатериалов на участка Заказчика;

Перечень работ:

  • Монтаж сруба с внутренними стенами(в зависимости от комплектации);
  • Врезка балок пола, межэтажных, подстропильных(в зависимости от комплектации);
  • Прокладка межвенцового утеплителя джута (льноватина);
  • Прошкантовка стен деревянными нагелями;
  • Монтаж стропильной конструкции;
  • Укладка обрешётки;
  • Покрытие крыши временной кровлей рубероид(уточнять);
  • Укладка на фундамент гидроизоляции;
  • Монтаж и демонтаж строительных лесов;
  • Обработка нижних венцов и балок.

Фундамент,кровля и доставка расчитываются индивидуально.

Площадь общая: 139,52м2
Площадь полезная 142,40м2

Похожие проекты

Наши преимущества
Работаем без предоплаты!
Выезд на заключение договора - бесплатно!
Доставка в любую точку центрального региона!
Материал проходит обработку экологически чистым антисептиком для внутренних и наружных работ!
При заказе дома скидка на баню до 10% от стоимости!
Бесплатный выезд для проведения послеусадочных работ!
Отделочные работы нами построенных домов - скидки до 20%!
Строим дома любой сложности!
Бесплатный расчет Вашего проекта!
Делаем согласование проектов домов с БТИ (данная услуга осуществляется отдельно)!
Предлагаем услуги дизайнера по созданию визуального вида вашего будущего дома!
Видео отзывы
Есть вопросы по строительству дома?
Вы можете приложить файл с проектом, схемой объекта. Если файлов несколько, вы можете сжать их архиватором WinZip или WinRar.