Дом из бруса 8 на 9 № ЭД-65 строительство домов из бруса и бревна под ключ цены
Обратная связь

Проект дома из бруса 8х9 № ЭД-65

Цена

Брус простой 150х150 1864610 Купить
Брус профилированный 145х145 2152150 Купить
Брус профилированный 145х195 2564980 Купить
Проект дома № ЭД-65 Проект дома № ЭД-65 Проект дома № ЭД-65 Проект дома № ЭД-65 Проект дома № ЭД-65 Проект дома № ЭД-65

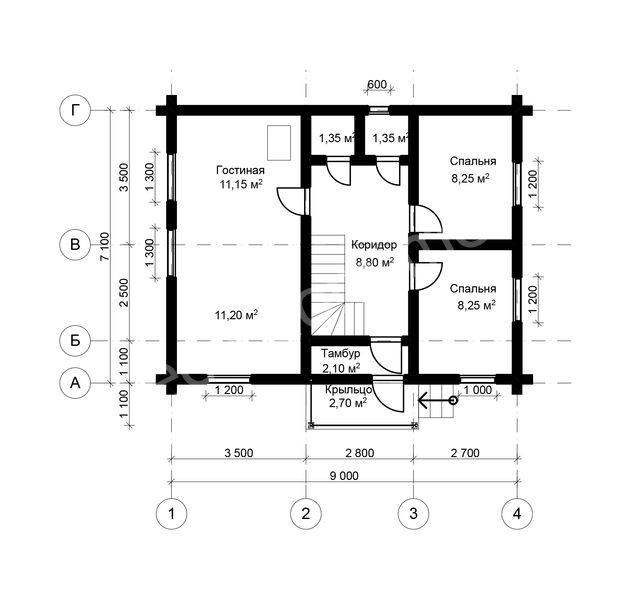
План схема Проект дома № ЭД-65

Высота стен первого этажа 3 метра.

Высота стен второго этажа 1,5 метра.

Высота рубленных фронтонов 3 метра.

Проект дома № ЭД-65 Проект дома № ЭД-65

Компания «Эко Дом Мне» предоставляет услуги по строительству отличных деревянных домов из простого и профилированного бруса. Работа ведется по готовому проекту № ЭД-65 с параметрами 8х9 метров. Это уютный и комфортный вариант жилья для проживания всей семьи.

Основными достоинствами предложения являются:

  • экологичность;
  • безопасность;
  • доступная цена;
  • быстрые сроки реализации заказа;
  • благоприятный микроклимат внутри помещения;
  • дополнительная антисептическая обработка.

В натуральном деревянном доме будет приятно жить детям и взрослым. Эфирные смолы, выделяемые из бруса, оказывают антисептический эффект, убивая патогенные бактерии и болезнетворные микроорганизмы. Давно замечено, что уровень работоспособности и активности в деревянной постройке значительно увеличивается, а самочувствие домочадцев становится лучше. Исчезают сонливость и апатия, которые могут вызывать бетонные смеси и химикаты, используемые при строительстве современных квартир.

Проект дома из бруса 8 на 9

Проект № ЭД-65 характеризуется удобной и практичной планировкой. На первом этаже будут находиться гостиная, совмещенная с кухней, тамбур, санузел, ванная, холл, коридор и две спальни. На втором этаже вас будут ожидать одна большая спальня площадью 22 квадрата и две маленькие спальни по 10 квадратов (их можно использовать в качестве детских). Также на этаже есть коридор и небольшая темная комната без окон. Ее можно эксплуатировать в качестве гардеробной или кладовой.

Обращаясь в компанию «Эко Дом Мне», вы получите:

  • четкое соблюдение сроков сдачи объектов;
  • профессиональные бригады рабочих;
  • отличное качество сборки;
  • специальную обработку антисептиком;
  • консультации представителей фирмы по интересующим вас вопросам;
  • демократичную стоимость всех предоставляемых услуг.

Заказ строительства двухэтажного дома по проекту № ЭД-65

Заказать организацию строительства объекта по проекту № ЭД-65 в компании «Эко Дом Мне» можно в любое удобное для вас время. Для этого позвоните нам, сделайте заявку на выезд представителя фирмы в ваш регион, и получите возможность наслаждаться собственным комфортным любимым домом всего через несколько недель. Всем нашим клиентам предоставляются дополнительные скидки на строительство бань, а также отделочные и ремонтные работы.

В комплектацию дома под усадку входит:

Материалы:

  • Наружные стены,бруса 150*150 мм.,145*145 мм.,195*145 мм.,(уточнять);
  • Внутренние стены,брус 100*150 мм.,95*145 мм.,145*145 мм.,(уточнять);
  • Рубленные фронтоны(в зависимости от комплектации,возможно каркасного типа (уточнять);
  • Внутренние перегородки,в зависимости от комплектации,возможно каркасного типа либо из бруса(уточнять);
  • Лаги пола первого этажа брус 100*150 мм.,межэтажные,подстропильные,возможен второй свет в зависимости от комплектации(уточнять);
  • Стропильная конструкция,брус 50*150 мм.;
  • Контробрешётка брус 50*50 мм.;
  • Обрешётка крыши,доска 25*150 мм., 25*100 мм.;
  • Метизные изделия (скобы, гвозди...);
  • Межвенцевой утеплитель,джут (льноватин);
  • Рубероид, временная кровля(уточнять);
  • Материал на изготовление строительных лесов;
  • Гидроизоляция на фундамент, гидроизол;
  • Рабочий проект;
  • Погрузка и разгрузка пиломатериалов на участка Заказчика;

Перечень работ:

  • Монтаж сруба с внутренними стенами(в зависимости от комплектации);
  • Врезка балок пола, межэтажных, подстропильных(в зависимости от комплектации);
  • Прокладка межвенцового утеплителя джута (льноватина);
  • Прошкантовка стен деревянными нагелями;
  • Монтаж стропильной конструкции;
  • Укладка обрешётки;
  • Покрытие крыши временной кровлей рубероид(уточнять);
  • Укладка на фундамент гидроизоляции;
  • Монтаж и демонтаж строительных лесов;
  • Обработка нижних венцов и балок.

Фундамент,кровля и доставка расчитываются индивидуально.

Площадь общая: 112,85м2
Площадь полезная 112,15м2

Похожие проекты

Наши преимущества
Работаем без предоплаты!
Выезд на заключение договора - бесплатно!
Доставка в любую точку центрального региона!
Материал проходит обработку экологически чистым антисептиком для внутренних и наружных работ!
При заказе дома скидка на баню до 10% от стоимости!
Бесплатный выезд для проведения послеусадочных работ!
Отделочные работы нами построенных домов - скидки до 20%!
Строим дома любой сложности!
Бесплатный расчет Вашего проекта!
Делаем согласование проектов домов с БТИ (данная услуга осуществляется отдельно)!
Предлагаем услуги дизайнера по созданию визуального вида вашего будущего дома!
Видео отзывы
Есть вопросы по строительству дома?
Вы можете приложить файл с проектом, схемой объекта. Если файлов несколько, вы можете сжать их архиватором WinZip или WinRar.