Дом из бревна 10 на 9 № ДиБ-66 строительство домов из бруса и бревна под ключ цены
Обратная связь

Проект дома из бревна 10х9 № ДиБ-66

Цена

ПО ЗАПРОСУ
Проект дома из бревна 10х9 № ДиБ-66 Проект дома из бревна 10х9 № ДиБ-66 Проект дома из бревна 10х9 № ДиБ-66 Проект дома из бревна 10х9 № ДиБ-66 Проект дома из бревна 10х9 № ДиБ-66 Проект дома из бревна 10х9 № ДиБ-66

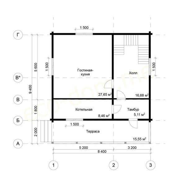
План схема Проект дома из бревна 10х9 № ДиБ-66

Высота стен первого этажа: 3 метра.

Высота наружных стен второго этажа: 1,7 метра.

Высота рубленных фронтонов: 2,5 метра.

Проект дома из бревна 10х9 № ДиБ-66 Проект дома из бревна 10х9 № ДиБ-66

В состав стоимости входит:

Материалы:
  • Наружные стены, бревно диаметр - 18, 20, 22, 24, 26 (уточнять);
  • Внутренние стены, бревно диаметр - 18, 20, 22, 24, 26 (уточнять);
  • Рубленные фронтоны, бревно диаметр - 18, 20, 22, 24, 26 (уточнять);
  • Внутренние перегородки, брус - 100х150 (уточнять);
  • Лаги пола, межэтажные, подстрапильные - 100х150 на ребро;
  • Стропила, брус - 50х150 на ребро;
  • Контробрешётка - 50х50;
  • Обрешётка, доска - 25х150, 25х100;
  • Черновой пол - 25х150, 25х100;
  • Метизные изделия (скобы, гвозди...);
  • Межвенцевой утеплитель, джут (льноватин);
  • Руберойд на временную кровлю крыши;
  • Материал на изготовление строительных лесов;
  • Гидроизоляция на фундамент, гидроизол;
  • Рабочий проект;
  • Погрузчика, доставка и разгрузка пиломатериалов до участка Заказчика
  • Перечень работ:
    1. Монтаж сруба с внутренними перегородками;
    2. Врезка балок половых, межэтажных, подстропильных;
    3. Прокладка межвенцового утеплителя джута (льноватина);
    4. Прошкантовка стен деревянными нагелями;
    5. Монтаж стропильной конструкции;
    6. Укладка обрешётки;
    7. Укладка черновых полов;
    8. Кровля временной кровлей-рубероидом;
    9. Укладка на фундамент гидроизоляции;
    10. Монтаж и демонтаж строительных лесов;
    11. Обработка нижних венцов и балок в подарок.
    Если Вам понравился проект дома из бревна, Вы можете заказать его строительство или строительство сруба двухэтажного прямо сейчас оформив заявку позвонив нашим менеджерам.

    Похожие проекты

    Наши преимущества
    Работаем без предоплаты!
    Выезд на заключение договора - бесплатно!
    Доставка в любую точку центрального региона!
    Материал проходит обработку экологически чистым антисептиком для внутренних и наружных работ!
    При заказе дома скидка на баню до 10% от стоимости!
    Бесплатный выезд для проведения послеусадочных работ!
    Отделочные работы нами построенных домов - скидки до 20%!
    Строим дома любой сложности!
    Бесплатный расчет Вашего проекта!
    Делаем согласование проектов домов с БТИ (данная услуга осуществляется отдельно)!
    Предлагаем услуги дизайнера по созданию визуального вида вашего будущего дома!
    Видео отзывы
    Есть вопросы по строительству дома?
    Вы можете приложить файл с проектом, схемой объекта. Если файлов несколько, вы можете сжать их архиватором WinZip или WinRar.