А фрейм дом-шалаш 6х8 м без террасы № ДШ-03 строительство домов из бруса и бревна под ключ цены
Обратная связь

А фрейм дом-шалаш 6х8 м без террасы № ДШ-03

Цена: 1705000 рублей

Купить
А фрейм дом-шалаш 6х8 м № 03 А фрейм дом-шалаш 6х8 м № 03 А фрейм дом-шалаш 6х8 м № 03 А фрейм дом-шалаш 6х8 м № 03 А фрейм дом-шалаш 6х8 м № 03 А фрейм дом-шалаш 6х8 м № 03 А фрейм дом-шалаш 6х8 м № 03 А фрейм дом-шалаш 6х8 м № 03 А фрейм дом-шалаш 6х8 м № 03

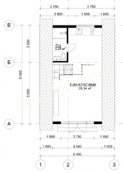
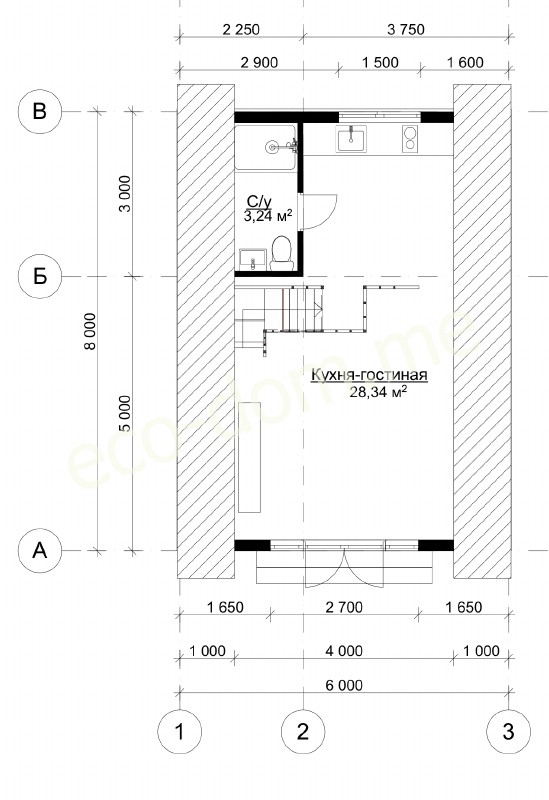
План схема А фрейм дом-шалаш 6х8 м № 03

Проект дома № ДШ-03: Общая площадь: 45,69 м, Полезная площадь: 43,99 м

А фрейм дом-шалаш 6х8 м № 03 А фрейм дом-шалаш 6х8 м № 03

В состав стоимости входит:

Материалы:
  1. Брус 150*150 мм закладной венец;
  2. Брус 50*150 мм балки пола;
  3. Брус 50*150 мм стропильная конструкция и каркас дома;
  4. Имитация бруса 135*15 мм обшитие наружных и внутренних фронтонов;
  5. Имитация бруса 135*15 мм обшитие внутренней части дома по стропилам;
  6. Имитация бруса 135*15 мм обшитие внутренних перегородок,если есть на плане;
  7. Брус 50*100 мм каркас внутренних перегородок, если есть на плане;
  8. Доска 25*100 мм, 25*150 мм обрешётка;
  9. Доска 25*100 мм, 25*150 мм черновой пол и внутрення контр-обрешетка;
  10. Брусок 50*50 мм контр-обрешетка по стропилам;
  11. Метизные изделия (скобы, гвозди, саморезы,крепежи);
  12. Утепление фронтонов и крыши на толщиной 150 мм;
  13. Пароизоляционные мембраны;
  14. Фанера или шпунт как чистовой пол;
  15. Лестница входит если есть на плане;
  16. Окна и двери, двойной стеклопакет цвет белый, согласно размеров на плане;
  17. Кровля металлочерепица(другие виды кровли рассчитываем индивидуально);
  18. Материал на изготовление строительных лесов;
  19. Гидроизоляция на фундамент - гидроизол;
  20. Рабочий проект;
Перечень работ:
  1. Монтаж дома;
  2. Врезка балок пола;
  3. Укладка утеплителя по стропилам и обшитие имитацией бруса;
  4. Монтаж стропильной конструкции;
  5. Укладка обрешётки и чистовой кровли;
  6. Укладка чистового пола(фанера или шпунт) с утеплением;
  7. Монтаж окон и дверей;
  8. Укладка на фундамент гидроизоляции;
  9. Монтаж и демонтаж строительных лесов;
  10. Обработка нижних венцов и балок в подарок!
Доставка и фундамент рассчитывается индивидуально!
Покраска имитации бруса в стоимость не входит!
Площадь общая: 43,83м2
Площадь полезная 42,11м2

Похожие проекты

Наши преимущества
Работаем без предоплаты!
Выезд на заключение договора - бесплатно!
Доставка в любую точку центрального региона!
Материал проходит обработку экологически чистым антисептиком для внутренних и наружных работ!
При заказе дома скидка на баню до 10% от стоимости!
Бесплатный выезд для проведения послеусадочных работ!
Отделочные работы нами построенных домов - скидки до 20%!
Строим дома любой сложности!
Бесплатный расчет Вашего проекта!
Делаем согласование проектов домов с БТИ (данная услуга осуществляется отдельно)!
Предлагаем услуги дизайнера по созданию визуального вида вашего будущего дома!
Видео отзывы
Есть вопросы по строительству дома?
Вы можете приложить файл с проектом, схемой объекта. Если файлов несколько, вы можете сжать их архиватором WinZip или WinRar.