Дом из бруса 9 на 8 № ЭД-46 строительство домов из бруса и бревна под ключ цены
Обратная связь

Проект дома из бруса 9х8 № ЭД-46

Актуальная информация доступна по ссылке!

Проект деревянного дома из бруса

Брус простой 150х150: Брус профилированный 145х145: Брус профилированный 145х195:

657 000 рублей.

865 000 рублей.

1 135 000 рублей.

Высота 1-го этажа 3 метра.
Высота рубленных фронтонов 3 метра.

ООО «Эко Дом Мне» занимается сооружением деревянных домов из бруса размером 9х8 по готовому проекту № ЭД-46. Главным преимуществом таких построек является экологичность и безопасность. В них всегда царит отличный микроклимат, благодаря которому зимой в помещении тепло, а летом — прохладно. «Дышащие» стены оказывают хороший эффект на здоровье. Постоянный приток свежего воздуха обеспечивает отличное самочувствие, а выделяемые эфирные смолы убивают болезнетворные бактерии.

Отличительными особенностями дома с мансардой по проекту № ЭД-46 являются:

  • разумная стоимость;
  • удобная планировка;
  • 2 спальни;
  • 2 комнаты отдыха;
  • кухня-столовая;
  • просторный балкон;
  • терраса;
  • высота 1-го этажа — 3 метра.

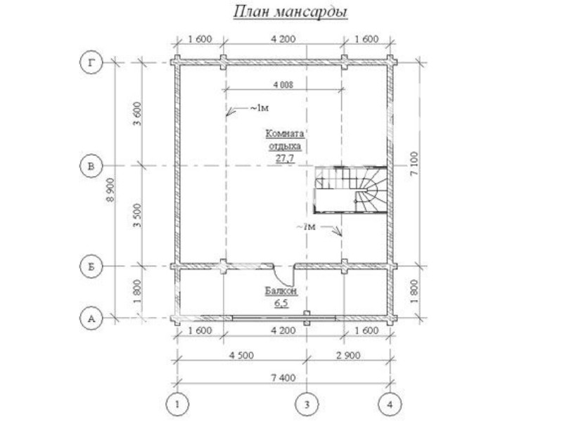
На первом этаже будут размещены: комната отдыха, две спальни, просторная кухня-столовая, терраса. На мансарде вас будут ожидать: огромная комната отдыха (почти 28 м 2) и вместительный балкон.

Современный проект дома из бруса 9 на 8

ООО «Эко Дом Мне» предлагает услуги профессионального строительства жилья с мансардой из бруса по демократичной цене. Важное значение имеет дизайн постройки. Изнутри и снаружи объект выглядит стильно и современно. Основным материалом является брус, использование которого не требует дополнительной отделки. Дерево всегда выглядит модно, оригинально и привлекательно.

Совершая заказ в «Эко Дом Мне», вы получите:

  • гарантию на все работы в течение 5 лет;
  • отличное качество и оперативные сроки реализации проекта;
  • возможность выполнения строительства во всех регионах страны;
  • отсутствие предоплаты;
  • дополнительную антисептическую обработку дома изнутри и снаружи.

Благодаря использованию антисептика, можно надежно защитить конструкцию от процесса гниения, плесени и грибка. Он создает тонкую водонепроницаемую пленку, которая не дает влаге оказывать негативное воздействие на дерево.

Проект дома с мансардой № ЭД-46

Если вы хотите стать обладателем отличного дома с мансардой из бруса по проекту № ЭД-46, обращайтесь в компанию «Эко Дом Мне». Профессиональные бригады опытных строителей помогут получить дом вашей мечты.

Позвоните по контактным телефонам, размещенным на сайте, или воспользуйтесь способом обратной связи, отправив короткую электронную заявку.

В состав стоимости входит:
Материалы:
  1. Брус 150х150 мм на наружные несущие стены;
  2. Доска 150x25 мм на наружные фронтоны;
  3. Брус 100х150 мм на внутренние перегородки;
  4. Брус 100х150 мм на балки перекрытий ( половые, межэтажные, подстропильные );
  5. Доска 50х150 мм на стропильную конструкцию;
  6. Доска 25х100 мм, 25х150 мм на обрешётку;
  7. Доска 25х100 мм, 25х150 мм на черновой пол;
  8. Брусок 50х50;
  9. Метизные изделия ( скобы, гвозди, саморезы );
  10. Межвенцовый утеплитель - льноватин;
  11. Рубероид на временную кровлю крыши;
  12. Материал на изготовление строительных лесов;
  13. Гидроизоляция на фундамент - гидроизол;
  14. Деревянные нагеля;
  15. Рабочий проект;
Перечень работ:
  1. Монтаж сруба с внутренними перегородками;
  2. Врезка балок половых, межэтажных, подстропильных;
  3. Прокладка межвенцового утеплителя льноватина;
  4. Подвивка льноватина;
  5. Прошкантовка стен деревянными нагелями;
  6. Монтаж стропильной конструкции;
  7. Укладка обрешётки;
  8. Укладка черновых полов;
  9. Кровля временной кровлей-рубероидом;
  10. Укладка на фундамент гидроизоляции;
  11. Монтаж и демонтаж строительных лесов.
  12. Обработка нижних венцов и балок в подарок.
Если Вам понравился проект дома из бруса, Вы можете заказать его строительство или строительство сруба двухэтажного прямо сейчас оформив заявку позвонив нашим менеджерам.
Наши преимущества
Работаем без предоплаты!
Выезд на заключение договора - бесплатно!
Доставка в любую точку центрального региона!
Материал проходит обработку экологически чистым антисептиком для внутренних и наружных работ!
При заказе дома скидка на баню до 10% от стоимости!
Бесплатный выезд для проведения послеусадочных работ!
Отделочные работы нами построенных домов - скидки до 20%!
Строим дома любой сложности!
Бесплатный расчет Вашего проекта!
Делаем согласование проектов домов с БТИ (данная услуга осуществляется отдельно)!
Предлагаем услуги дизайнера по созданию визуального вида вашего будущего дома!
Видео отзывы
Есть вопросы по строительству дома?
Вы можете приложить файл с проектом, схемой объекта. Если файлов несколько, вы можете сжать их архиватором WinZip или WinRar.