Дом из бруса № ДБ-194 строительство домов из бруса и бревна под ключ цены
Обратная связь

Дом из бруса № ДБ-194

Цена

Брус простой 150х150 1238380 Купить
Брус профилированный 145х145 1481920 Купить
Брус профилированный 145х195 1785740 Купить
Проект дома из бруса № 194 Проект дома из бруса № 194 Проект дома из бруса № 194 Проект дома из бруса № 194 Проект дома из бруса № 194 Проект дома из бруса № 194

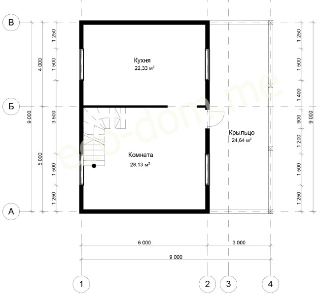
План схема Проект дома из бруса № 194

Высота стен первого этажа: 2,5 метра.

Высота фронтонов: 3,5 метра.

Проект дома из бруса № 194 Проект дома из бруса № 194

В комплектацию дома под усадку входит:

Материалы:

  • Наружные стены,бруса 150*150 мм.,145*145 мм.,195*145 мм.,(уточнять);
  • Внутренние стены,брус 100*150 мм.,95*145 мм.,145*145 мм.,(уточнять);
  • Рубленные фронтоны(в зависимости от комплектации,возможно каркасного типа (уточнять);
  • Внутренние перегородки,в зависимости от комплектации,возможно каркасного типа либо из бруса(уточнять);
  • Лаги пола первого этажа брус 100*150 мм.,межэтажные,подстропильные,возможен второй свет в зависимости от комплектации(уточнять);
  • Стропильная конструкция,брус 50*150 мм.;
  • Контробрешётка брус 50*50 мм.;
  • Обрешётка крыши,доска 25*150 мм., 25*100 мм.;
  • Метизные изделия (скобы, гвозди...);
  • Межвенцевой утеплитель,джут (льноватин);
  • Рубероид, временная кровля(уточнять);
  • Материал на изготовление строительных лесов;
  • Гидроизоляция на фундамент, гидроизол;
  • Рабочий проект;
  • Погрузка и разгрузка пиломатериалов на участка Заказчика;

Перечень работ:

  • Монтаж сруба с внутренними стенами(в зависимости от комплектации);
  • Врезка балок пола, межэтажных, подстропильных(в зависимости от комплектации);
  • Прокладка межвенцового утеплителя джута (льноватина);
  • Прошкантовка стен деревянными нагелями;
  • Монтаж стропильной конструкции;
  • Укладка обрешётки;
  • Покрытие крыши временной кровлей рубероид(уточнять);
  • Укладка на фундамент гидроизоляции;
  • Монтаж и демонтаж строительных лесов;
  • Обработка нижних венцов и балок.

Фундамент,кровля и доставка расчитываются индивидуально.

Площадь общая: 149,57м2
Площадь полезная 152,41м2

Похожие проекты

Наши преимущества
Работаем без предоплаты!
Выезд на заключение договора - бесплатно!
Доставка в любую точку центрального региона!
Материал проходит обработку экологически чистым антисептиком для внутренних и наружных работ!
При заказе дома скидка на баню до 10% от стоимости!
Бесплатный выезд для проведения послеусадочных работ!
Отделочные работы нами построенных домов - скидки до 20%!
Строим дома любой сложности!
Бесплатный расчет Вашего проекта!
Делаем согласование проектов домов с БТИ (данная услуга осуществляется отдельно)!
Предлагаем услуги дизайнера по созданию визуального вида вашего будущего дома!
Видео отзывы
Есть вопросы по строительству дома?
Вы можете приложить файл с проектом, схемой объекта. Если файлов несколько, вы можете сжать их архиватором WinZip или WinRar.