Дом из бруса 9 на 11 № ЭД-58 строительство домов из бруса и бревна под ключ цены
Обратная связь

Проект дома из бруса 9х11 № ЭД-58

Цена

Брус простой 150х150 2423520 Купить
Брус профилированный 145х145 2701820 Купить
Брус профилированный 145х195 3188790 Купить
Проект дома из бруса 9х11 № ЭД-58 Проект дома из бруса 9х11 № ЭД-58 Проект дома из бруса 9х11 № ЭД-58 Проект дома из бруса 9х11 № ЭД-58 Проект дома из бруса 9х11 № ЭД-58 Проект дома из бруса 9х11 № ЭД-58

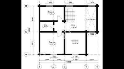
План схема Проект дома из бруса 9х11 № ЭД-58

Высота 1 этажа - 3 метра

Высота 2 этажа - 1.5 метра

Высота рубленных фронтонов - 3 метра

Проект дома из бруса 9х11 № ЭД-58 Проект дома из бруса 9х11 № ЭД-58

Дом из бруса 9 на 11 станет настоящим украшением вашего дачного участка или загородных владений. В этой компактной постройке предусмотрено все необходимое как для летнего или зимнего отдыха на природе, так и для постоянного проживания. В нем с комфортом разместится семья из 3-5 человек, не чувствуя стеснения и неудобств.

Проект дома из бруса 9 на 11

Первый этаж постройки предназначен для совместного времяпрепровождения обитателей дома. Здесь расположена просторная гостиная, изюминкой которой является второй свет. Он придает этой небольшой постройке ореол особой роскоши и создает возможность обустроить интерьер в современном стиле. Четыре больших окна наполняют эту комнату светом, создавая комфортные условия для отдыха и развлечений. Также второй свет делает особенно уютным холл мансардного этажа с балюстрадой, естественным освещением и приятным видом на гостиную.

В доме предусмотрено все необходимое, чтобы зимой было тепло:

  • у входа расположена просторная котельная, площадь которой позволяет не только обслуживать печь, но и разместить небольшой запас топлива;
  • прихожая вытянутой формы надежно защитит остальные помещения от сквозняков и попадания холодного воздуха;
  • соединение ее с гостиной и спальней первого этажа через холл обеспечит максимальное теплосбережение в доме зимой.

Расположенные на втором этаже спальни позволят хозяевам и гостям уютно чувствовать себя в любое время года. Самое теплое место в деревянном доме – мансарда, здесь вы сможете отлично выспаться и не беспокоиться о засидевшихся внизу гостях.

Наличие санузла как на первом, так и на втором этаже – залог спокойствия и комфорта всех членов семьи и гостей.

Строительство по проекту одноэтажного дома с мансардой

Заказав строительство по этому проекту, вы можете быть уверены в том, что стоимость, указанная в договоре, не изменится в процессе выполнения работ. Мы пунктуальны и соблюдаем оговоренные сроки, поэтому, заказав возведение постройки под ключ, вы можете готовиться к переезду в намеченное время.

Работа опытных мастеров позволяет нам гарантировать высокое качество исполнения работ:

  • наши строители – потомственные мастера, много лет работающие с брусом;
  • мы используем только качественный и надежный инструмент, что благотворно отражается на результате;
  • грамотный подход к реализации проекта – основа своевременного его завершения и отсутствия строительных ошибок.

Расчет точной цены дома с учетом ваших индивидуальных пожеланий вы можете заказать у нашего менеджера. Звоните или воспользуйтесь удобной формой на сайте.

В состав стоимости входит:

Материалы:
  1. Брус 150х150 мм на наружные несущие стены;
  2. Брус 150х150 мм наружные фронтоны;
  3. Брус 100х150 мм на внутренние перегородки;
  4. Брус 100х150 мм на балки перекрытий ( половые, межэтажные, подстропильные );
  5. Доска 50х150 мм на стропильную конструкцию;
  6. Доска 25х100 мм, 25х150 мм на обрешётку;
  7. Доска 25х100 мм, 25х150 мм на черновой пол;
  8. Брусок 50х50;
  9. Метизные изделия ( скобы, гвозди, саморезы );
  10. Межвенцовый утеплитель - льноватин;
  11. Рубероид на временную кровлю крыши;
  12. Материал на изготовление строительных лесов;
  13. Гидроизоляция на фундамент - гидроизол;
  14. Деревянные нагеля;
  15. Рабочий проект;
Перечень работ:
  1. Монтаж сруба с внутренними перегородками;
  2. Врезка балок половых, межэтажных, подстропильных;
  3. Прокладка межвенцового утеплителя льноватина;
  4. Подвивка льноватина;
  5. Прошкантовка стен деревянными нагелями;
  6. Монтаж стропильной конструкции;
  7. Укладка обрешётки;
  8. Укладка черновых полов;
  9. Кровля временной кровлей-рубероидом;
  10. Укладка на фундамент гидроизоляции;
  11. Монтаж и демонтаж строительных лесов.
  12. Обработка нижних венцов и балок в подарок
Если Вам понравился проект дома из бруса, Вы можете заказать его строительство или строительство сруба двухэтажного прямо сейчас оформив заявку позвонив нашим менеджерам.
Доставка, фундамент и чистовая кровля рассчитываются индивидуально!
Площадь общая: 139,95м2
Площадь полезная 144,43м2

Похожие проекты

Наши преимущества
Работаем без предоплаты!
Выезд на заключение договора - бесплатно!
Доставка в любую точку центрального региона!
Материал проходит обработку экологически чистым антисептиком для внутренних и наружных работ!
При заказе дома скидка на баню до 10% от стоимости!
Бесплатный выезд для проведения послеусадочных работ!
Отделочные работы нами построенных домов - скидки до 20%!
Строим дома любой сложности!
Бесплатный расчет Вашего проекта!
Делаем согласование проектов домов с БТИ (данная услуга осуществляется отдельно)!
Предлагаем услуги дизайнера по созданию визуального вида вашего будущего дома!
Видео отзывы
Есть вопросы по строительству дома?
Вы можете приложить файл с проектом, схемой объекта. Если файлов несколько, вы можете сжать их архиватором WinZip или WinRar.